Te koop Melsele (Beveren), Bergmolenstraat - Fase ...

Beschrijving van   

Vergelijk realty's

Te koop Melsele (Beveren), Bergmolenstraat - Fase 1: Lot 04

Melsele (Beveren), Bergmolenstraat - Fase 1: Lot 04 Melsele (Beveren), Bergmolenstraat - Fase 1: Lot 04 Melsele (Beveren), Bergmolenstraat - Fase 1: Lot 04 Melsele (Beveren), Bergmolenstraat - Fase 1: Lot 04 Melsele (Beveren), Bergmolenstraat - Fase 1: Lot 04 Melsele (Beveren), Bergmolenstraat - Fase 1: Lot 04 Melsele (Beveren), Bergmolenstraat - Fase 1: Lot 04 Melsele (Beveren), Bergmolenstraat - Fase 1: Lot 04 Melsele (Beveren), Bergmolenstraat - Fase 1: Lot 04 Melsele (Beveren), Bergmolenstraat - Fase 1: Lot 04 Melsele (Beveren), Bergmolenstraat - Fase 1: Lot 04 Melsele (Beveren), Bergmolenstraat - Fase 1: Lot 04
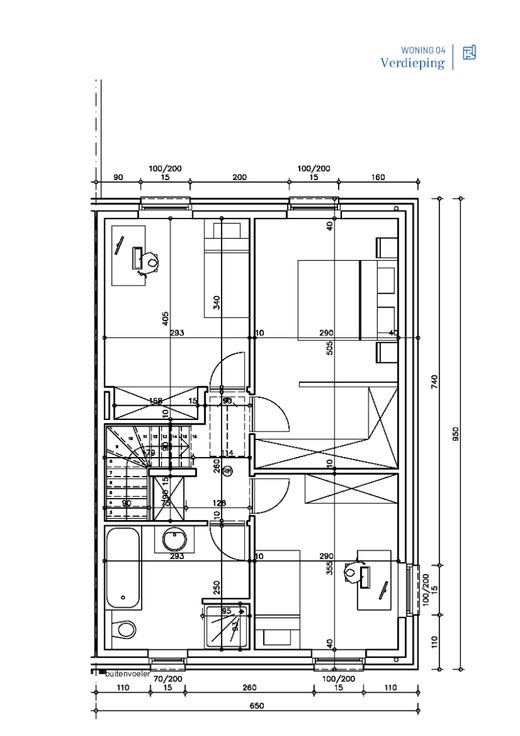
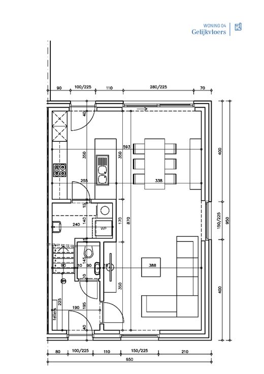
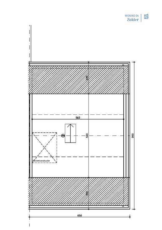
Halfopen energiezuinige nieuwbouwwoning op een Zuid gericht perceel van 190m2. De interieurafwerking van de woning is volledig op maat te kiezen a.d.h.v. ruime afwerkingsbudgetten. De woning is uitgerust met een ruim pakket aan energiezuinige technieken zoals warmtepomp, ventilatie D, vloerverwarming op beide verdiepingen,... . Op het gelijkvloers beschikt de woning over een inkom met gastentoilet, een praktische wasplaats en een open leefruimte. Op de eerste verdieping bevinden zich 3 slaapkamers, een dressing en een badkamer met bad+douche. De zolder is toegankelijk met een uitschuifbare zoldertrap. De woning wordt gebouwd in het nieuwbouwproject in de Bergmolenstraat te Melsele. In totaal worden daar 12 halfopen en gesloten woningen gebouwd . In het project kunnen autostaanplaatsen (sommige overdekt) aangekocht worden. Contacteer onze bouwadviseur Xavier (0497 599 995 - contact@huysmanbouw.be) voor meer info of om een afspraak in te plannen. Renovatieplicht: onbekend
Type vastgoed Huis
Prijs Op aanvraag
Aantal slaapkamers 3
Aantal badkamers 1