Te koop Huis

Beschrijving van   

Vergelijk realty's

Logo
Ligging
6280 GERPINNES
Contactgegevens
Century 21 Iris-Concept
+32071960367
E-mail deze adverteerder
BEWAREN
DOORSTUREN

Te koop Huis

Huis Huis Huis Huis Huis Huis Huis Huis Huis Huis Huis Huis Huis Huis Huis Huis
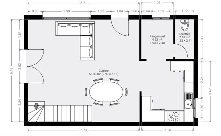
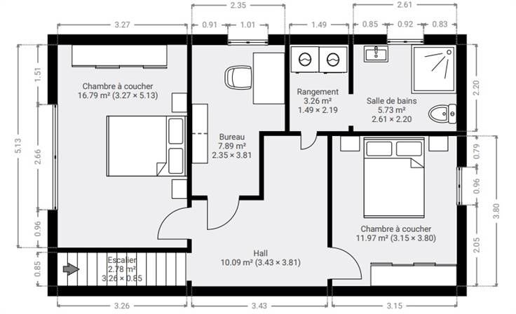
Sorry er is geen nederlandse vertaling beschikbaar. Century 21 Iris-concept vous propose une jolie maison 4 façades dans une rue calme à Gerpinnes, proche à la fois des axes routiers ainsi que des transports en communs. Le bien est composé d'un grand salon et cuisine communicante, une cuisine super équipée, un grand espace de vie ouvert lumineux avec un accès direct à la terrasse et au jardin, pour terminer le rez-de-chaussée vous y trouverez également un wc et une buanderie. Au premier étage, un hall de nuit, 3 chambres à coucher bien agencées, un bureau et une salle de bain lumineuse. Grenier aménageable de 39.48 m². Chauffage au gaz + panneaux photovoltaïques. Faire offre à partir de 299 000€ (sous réserve d'acceptation du propriétaire) Infos et visites au 071/96.03.67 ou sur info@century21iris-concept.be
Type vastgoed Huis
Prijs 299.000
Bewoonbare opp. 130
Aantal slaapkamers 3