Te koop Huis

Beschrijving van   

Vergelijk realty's

Te koop Huis

Huis Huis Huis Huis Huis Huis Huis Huis Huis Huis Huis Huis
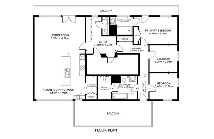
Immo 2.0 heeft het genoegen u dit prachtige penthouse van 134m² voor te stellen in een gloednieuw gebouw, dat een ongeëvenaarde woonervaring biedt. Dit penthouse is centraal gelegen tussen de rotonde van Meir en Veeyewde, vlakbij restaurants, winkels en openbaar vervoer. Met 3 goed ingerichte slaapkamers hebben jij en je gezin de ruimte die je nodig hebt om comfortabel te wonen. Het nieuwe gebouw heeft een eigentijds ontwerp en hoogwaardige afwerking. Grote erkers overspoelen elke kamer met natuurlijk licht en bieden een ononderbroken uitzicht op de stad vanuit uw eigen leefruimte. Geniet van het buitenleven op uw privéterras, waar u diners en feesten kunt organiseren of gewoon kunt ontspannen terwijl u geniet van het panoramische uitzicht op de stad. Mis deze zeldzame kans niet om in absolute luxe te wonen in het hart van [naam van de stad invoegen]. Neem vandaag nog contact met ons op voor meer informatie of om een bezichtiging te regelen. Dit penthouse is een unieke kans en zal niet lang op de markt blijven. Wacht niet langer en maak van dit penthouse vandaag nog uw thuis!
Type vastgoed Appartement
Prijs Op aanvraag
Bewoonbare opp. 134
Aantal slaapkamers 3
Aantal badkamers 1