Te koop Huis

Beschrijving van   

Vergelijk realty's

Te koop Huis

Huis Huis Huis Huis Huis Huis Huis Huis Huis Huis Huis Huis Huis Huis Huis Huis Huis Huis Huis
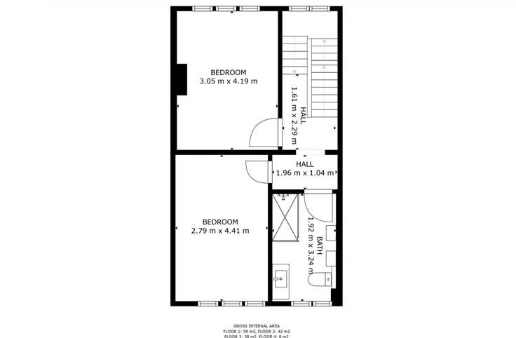
TE KOOP - Referentie : PERLE ** Onder optie ** Bezichtigingen opgeschort ** Immo 2.0 heeft het genoegen u de sublieme "Perle" voor te stellen, een huis met 4 slaapkamers gelegen aan de Ninoofsesteenweg te Dilbeek. Dit 3-fronten huis is gebouwd op 2 niveaus. op de begane grond biedt "Perle" u een lichte woonkamer, bestaande uit een salon en een eetkamer, evenals een volledig uitgeruste keuken en een wasruimte. Het ruime terras is 40 m² groot en biedt u een gezellige en ontspannende buitenruimte voor mooie momenten met familie of vrienden. Op de eerste verdieping zijn er twee slaapkamers en een doucheruimte met Italiaanse charme. Op de tweede verdieping zal een eerste slaapkamer met een mezzanine u een prachtige helderheid bieden, terwijl de tweede, charmante ouderlijke slaapkamer, u een directe toegang tot een kleedkamer zal geven. Technische informatie: Het dak is zeven jaar geleden gerenoveerd. Gascondensatieketel zeven jaar geleden vervangen. PVC dubbele beglazing 2 toegangsdeuren. Elektriciteit conform. EPB D label. Doe een bod vanaf 345.000 euro. De eigenaren behouden zich het recht voor de hoogte en de kwaliteit van de aanbiedingen te beoordelen. De makelaar heeft niet de bevoegdheid om te verkopen. De eigenaars bepalen de minimum biedingen die in aanmerking komen. Link naar het virtuele bezoek: https://my.matterport.com/show/?m=81PieXMzUFy Voor meer infor
Type vastgoed Huis
Prijs Op aanvraag
Bewoonbare opp. 180
Aantal slaapkamers 4
Aantal badkamers 1