Te huur Appartement met tuin

Beschrijving van   

Vergelijk realty's

Te huur Appartement met tuin

Appartement met tuin Appartement met tuin Appartement met tuin Appartement met tuin Appartement met tuin Appartement met tuin Appartement met tuin Appartement met tuin Appartement met tuin Appartement met tuin Appartement met tuin
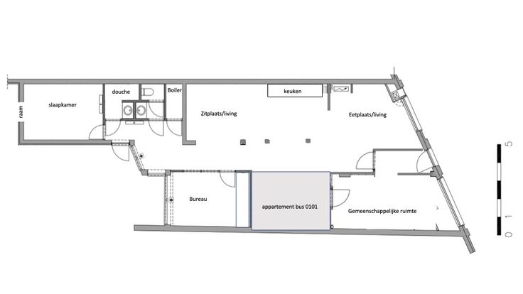
Ruim gelijkvloers appartement MET TUIN met slaapkamer en extra slaapkamer/bureau gelegen in het centrum van Rillaar. Vlakbij kleine supermarkt, bakker en bushalte. Dit appartement heeft een slaapkamer, ruime leefruimte en keuken. Vernieuwde badkamer met douche, WC, een groot bureau of extra kamer met inbouwkasten en een grote gemeenschappelijke inkomhal voor het plaatsen van fietsen. Schuifdeur geeft ook mogelijkheid voorste ruimte af te splitsen met bijkomende ruimte. Ruim terras en tuin. Energie-aansluiting (gas, elektriciteit en water) werden volledig vernieuwd met aparte tellers. (ECP bevat nog oude waarde). Dit appartement maakt deel uit van kleinschalige appartementsblok met slechts 2 appartementen. Gelegen op 5 minuten van de op- en afrit van E314. Openbaar vervoer en winkels op wandelafstand. Ook korte termijn mogelijk. Voor meer inlichtingen of bezichtiging: gelieve E-mail met jouw naam en jouw telefoonnummer te sturen via deze advertentie, dan bellen we je zeker terug voor een afspraak.
Type vastgoed Appartement
Prijs 850
Aantal slaapkamers 2
Aantal badkamers 1