Te koop Huis

Beschrijving van   

Vergelijk realty's

Te koop Huis

Huis Huis Huis Huis Huis Huis Huis Huis Huis Huis Huis Huis Huis Huis Huis Huis Huis Huis Huis Huis Huis Huis Huis
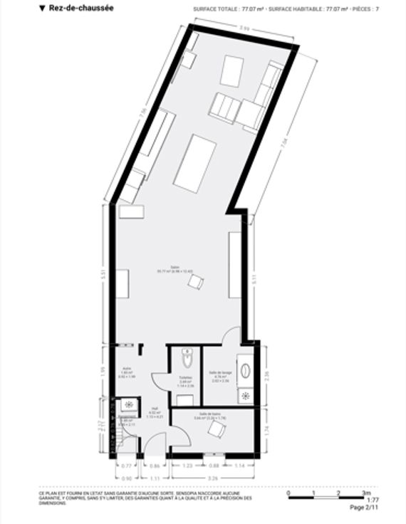
Superbe Maison de +/- 170m2 habitables située à proximité de toutes les facilités et composée comme suit : REZ : Espace de vie de 56m2 comprenant Salon, Salle à manger et Cuisine ouverte avec îlot central, Buanderie, Salle de Douche à terminer (matériel présent), Local de rangement, Vestiaire et WC séparé. 1er ETAGE : Hall de Nuit, 2 Chambres (+/- 21 et 10m2), Salle de bain avec WC. 2 ème ETAGE: 2 Chambres (+/- 27 et 19m2) avec finitions à prévoir. JARDIN ET TERRASSE. CAVE. ELECTRICITE CONFORME ! Chauffage central au Gaz, Châssis PVC Double Vitrage. PEB d'avant travaux, rénovation complète effectuée. Faire offre à partir de 220.000€ sous réserve de l'acceptation des propriétaires. Contactez nous rapidement pour planifier la visite de votre future maison !
Type vastgoed Huis
Prijs 220.000
Bewoonbare opp. 170
Aantal slaapkamers 4
Aantal badkamers 2