Te koop Te koop, bouwgrond (optioneel met weide) v...

Beschrijving van   

Vergelijk realty's

Te koop Te koop, bouwgrond (optioneel met weide) voor HOB of klei...

Te koop, bouwgrond (optioneel met weide) voor HOB of klei... Te koop, bouwgrond (optioneel met weide) voor HOB of klei... Te koop, bouwgrond (optioneel met weide) voor HOB of klei... Te koop, bouwgrond (optioneel met weide) voor HOB of klei...
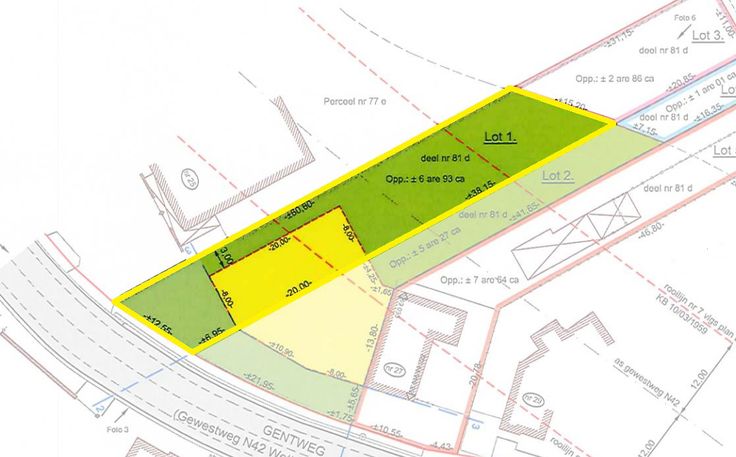
Mogelijkheid tot bijkopen aangrenzend perceel weide (Oudendries - 130.000 euro - 1,09ha) Mogelijkheid tot inname van 20 are van deze weide (mits opzeg van 3 maanden aan pachter/ eventueel afkopen van de pacht) Wetgeving: Pacht Te koop: Bouwgrond met tal van mogelijkheden op een gunstige locatie in Herzele Ben je op zoek naar een veelzijdig perceel voor een unieke bouwopportuniteit? Dit ideaal gelegen stuk bouwgrond van 693 m² biedt tal van mogelijkheden en is gelegen langs de N42, waardoor je geniet van een uitstekende verbinding naar Geraardsbergen, Zottegem, Oosterzele en de E40. Mogelijkheden: Realisatie van een ruime halfopen bebouwing Ontwikkeling van een kleinschalig appartementsgebouw Geschikt voor een vrij beroep met woonst en praktijkruimte Specificaties: Straatbreedte: 12,55 meter Diepte perceel: ca. 60 meter Bouwmogelijkheden: Breedte: 8 meter Diepte: 20 meter (gelijkvloers) / 12 meter (verdiep) 2 bouwlagen + dakverdieping (max. kroonlijsthoogte: 6,2 meter) Daarnaast is er de mogelijkheid om een aangrenzend perceel weide (1,09 ha) aan te kopen (Oudendries - €130.000), inclusief de optie om 20 are van deze weide te benutten (mits opzeg van 3 maanden aan de pachter, onderhevig aan pachtwetgeving). Adres: Gentweg, naast nummer 27, Herzele Dit perceel biedt zowel residentiële als commerciële mogelijkheden en is ideaal voor wie op zoek is naar ruimte, bereikbaarheid en veelzijdigheid. Interesse? Contacteer ons snel voor meer informat... Renovatieplicht: NOT_APPLICABLE
Type vastgoed Grond
Prijs 145.000