Te koop Huis

Beschrijving van   

Vergelijk realty's

Te koop Huis

Huis Huis
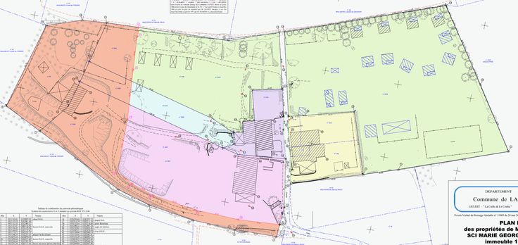
Dans un secteur calme et verdoyant, une grande maison individuelle composée de 4 appartements pour une surface totale d'environ 423 m2. Une cave, un garage et d'autres dépendances pour une surface totale d'environ 200 m2 complètent ce bien. L'ensemble est implanté sur un terrain plat d'environ 2070 m2 ou plus. Idéal investisseur pour de la location touristique. Possibilité d'acquérir beaucoup plus de foncier.   (Honoraires de 5% TTC inclus à la charge de l'acquéreur.) Votre agent commercial 3G IMMO sur place EI - Jérôme DANIEL Inscrit au RSAC d'ANNECY 531 946 804, Tel : 06 03 52 39 79, Site 3gimmo : https://archive.3gimmo.com/daniel Selon l'article L.561.5 du Code Monétaire et Financier, pour l'organisation de la visite, la présentation d'une pièce d'identité vous sera demandée. Les informations sur les risques auxquels ce bien est exposé sont disponibles sur le site Géorisques : www.georisques.gouv.fr
Type vastgoed Huis
Prijs 1.417.500
Bewoonbare opp. 423
Aantal slaapkamers 12