Te koop Gezellige woning 2 slaapkamers

Beschrijving van   

Vergelijk realty's

Te koop Gezellige woning 2 slaapkamers

Gezellige woning 2 slaapkamers
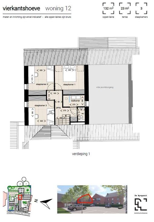
Hof Van Rijkel een project in het hart van het gelijknamig dorpje in Borgloon.  De oude pastorie van Rijkel, de parochiezaal en de bestaande vierkantshoeve worden omgebouwd tot 15 energiezuinige woonheden, elk met een unieke omvang en indeling.  De woonheden delen een binnenkoer, bergruimte, tuinzone en een commonhouse en toch beschikt elke woning ook over veel privacy met een eigen, afgeschermde tuin of terras. Graag meer informatie of en bezoek ter plaatse, bel Vanessa 0497/681900!   Renovatieplicht: nee
Type vastgoed Huis
Prijs 313.625
Bewoonbare opp. 134
Aantal slaapkamers 3
Aantal badkamers 1