Te koop Goed gelegen startersappartement

Beschrijving van   

Vergelijk realty's

Te koop Goed gelegen startersappartement

Goed gelegen startersappartement Goed gelegen startersappartement Goed gelegen startersappartement Goed gelegen startersappartement Goed gelegen startersappartement Goed gelegen startersappartement Goed gelegen startersappartement Goed gelegen startersappartement Goed gelegen startersappartement Goed gelegen startersappartement Goed gelegen startersappartement
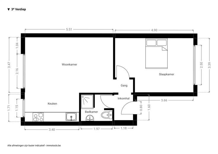
Midden in het historisch centrum , vind je op de derde en bovenste verdieping van een kleinschalig gebouw dit instapklare appartement. Je komt er binnen in de inkomhal, waar je plaats hebt om je jassen weg te hangen. De mooie, donkere laminaatparket die je hier ziet, loopt door over zowat het hele appartement. Van hieruit stap je gezellige, lichte leefruimte met open keuken in, met voldoende plaats voor een ruime zithoek en een eettafel aan de vele ramen vooraan. De keuken is volledig geïnstalleerd en heeft een tegelvloer, inox spatwand, keramisch vuur, dampkap, spoelbak, koelkast en praktische keukenkasten. De slaapkamer bevindt zich aan de andere kant van het appartement en is met z’n 18 m² ruim genoeg voor een dubbel bed, een kleerkast én een bureauhoek. Je kijkt hier bovendien uit op de Antwerpse daken, inclusief zicht op de Carolus Borromeuskerk, de Boerentoren én de kathedraal. De betegelde badkamer is compact, maar gerieflijk, met een douche met gordijn, een lavabo met een spiegel en verlichting en een toilet. De witte metrotegeltjes tot op borsthoogte zijn een toffe extra touch. Centraler dan dit wordt het niet: vlakbij de Ossenmarkt, de campus van de UA, de Meir, en allerlei openbaar vervoer. Ideaal dus voor een student die z’n eigen plek wil vlakbij de campus, of voor een stadsmus pur sang. Meer info: https://www.immovasta.be/panden/gegevens/13625/
Type vastgoed Appartement
Prijs 199.000
Bewoonbare opp. 54
Aantal slaapkamers 1
Aantal badkamers 1