Te koop Appartement

Beschrijving van   

Vergelijk realty's

Te koop Appartement

Appartement Appartement Appartement Appartement Appartement Appartement Appartement Appartement Appartement Appartement Appartement Appartement Appartement Appartement Appartement Appartement Appartement
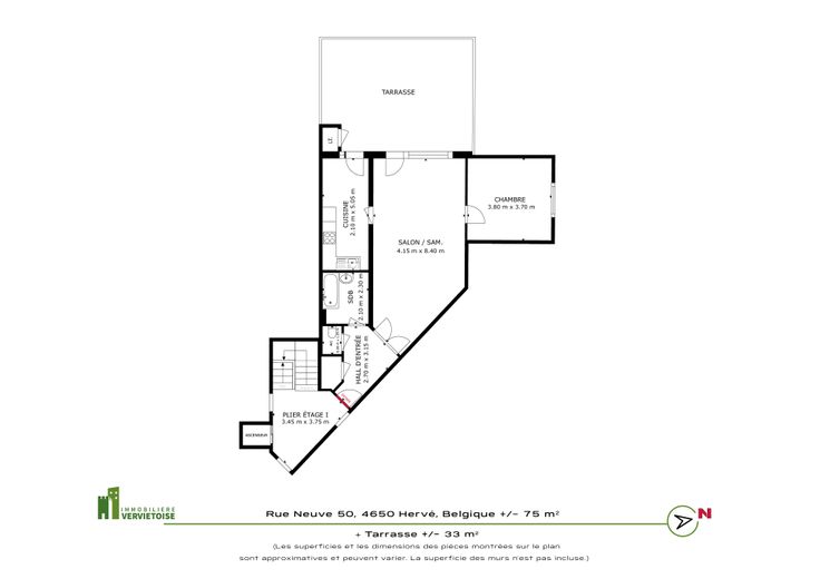
L'Immobilière Verviétoise vous propose ce magnifique appartement 1 chambre situé en plein centre de Herve, dans la résidence Marie-Thérèse. Il vous séduira non seulement par sa luminosité mais aussi par sa très grande terrasse (24m2). Les finitions sont en bon état mais nécessite un petit rafraichissement. Il est idéal pour un couple ou une personne seule. De plus, un garage box fermé ainsi qu'une cave sont là pour votre confort ! Prenez vite rendez-vous afin de visiter cette petite merveille et jetez un oeil à la visite virtuelle. L'Immobilière Verviétoise - 087/33.03.49 - info@i-v.be
Type vastgoed Appartement
Prijs 185.000
Bewoonbare opp. 80
Aantal slaapkamers 1
Aantal badkamers 1