Te huur Benedenverdieping

Beschrijving van   

Vergelijk realty's

Te huur Benedenverdieping

Benedenverdieping Benedenverdieping Benedenverdieping Benedenverdieping Benedenverdieping Benedenverdieping
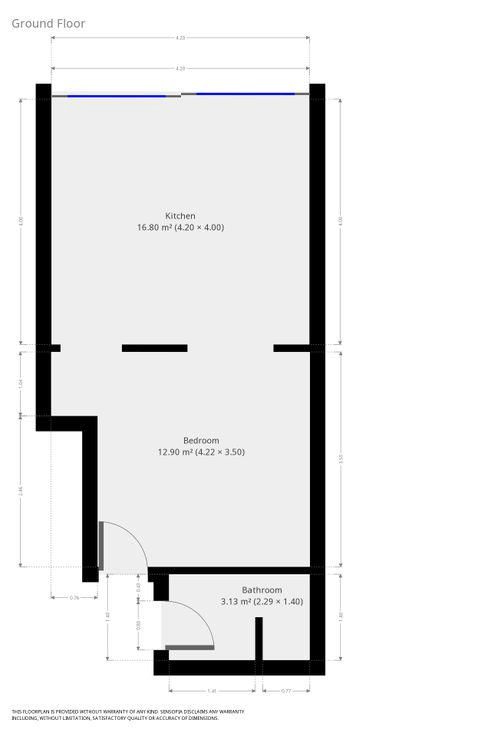
Uccle, à proximité de Stalle, des commerces et des transports en communs, rez-de-jardin meublé de +/- 35m², très lumineux et offrant : séjour de 15m² donnant sur le jardin de +/- 50m², cuisine équipée, une chambre de 13m² et sdd. Double vitrage. Charges de 100€/mois (eau, chauffage, éléctricité et internet). Machine à laver et séchoir. Libre immédiatement. A saisir!
Type vastgoed Appartement
Prijs 800
Bewoonbare opp. 35
Aantal slaapkamers 1
Gemeubileerd YES