Te koop Bouwgrond

Beschrijving van   

Vergelijk realty's

Te koop Bouwgrond

Bouwgrond Bouwgrond Bouwgrond Bouwgrond
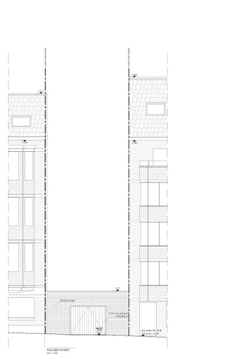
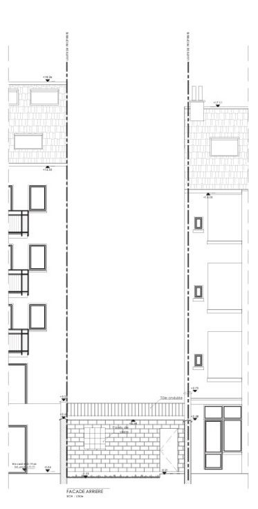
Projet de construction pour un immeuble à appartements composé de 3 logements. L'ensemble est réparti sur 6 niveaux hors sol (rez-de-chaussée, 4 étages et combles) et 1 niveau en sous-sol. Les 3 logements de type duplex se répartissent comme suit : - un duplex de 96,5m² : 2 chambres au rez-de-chaussée arrière et au 1er étage avec jardin ; - un duplex de 93m² : 2 chambres aux 2ème et 3ème étages avec terrasse - un duplex de 93,7m² : 1 chambre au 4ème étage et sous combles avec terrasse - en sous-sol 3 caves, une chaufferie, un local à poussettes et un local à poubelles ; Permis d'urbanisme déjà obtenu - Dossier complet sur demande.
Type vastgoed Grond
Prijs 325.000