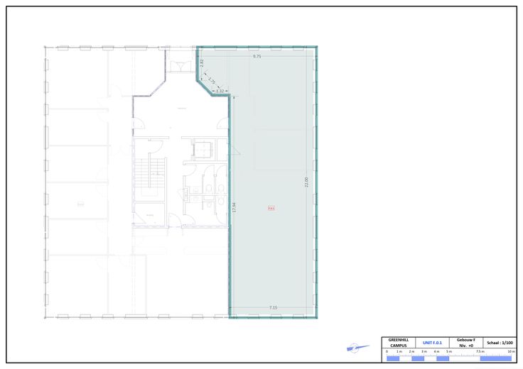
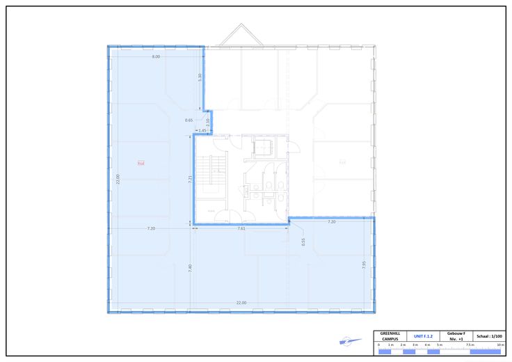
**RECHTSTREEKS VAN EIGENAAR** - Kantoorgebouw gelegen aan de rechterzijde van de GreenHill Campus. Dit gebouw is 1.808 m² groot en heeft een gelijkvloers en 3 verdiepingen.
Het betreft het gehele gelijkvloers (F0.1 + F0.2) én een deel van de eerste verdieping (F1.2), is 790 m² groot, en wordt gehuurd door een huurder.
Initiële huurduur: 6/9. Jaarlijkse huur: 79.995 € (excl.lasten).
Bruto rendement: 7%.
2 archieven van totaal 86 m² + 10 parkeerplaatsen (7 buiten en 3 binnen) inbegrepen.
Deze kantoren zijn uitgerust met verlaagd plafond met geïntegreerde lichtarmaturen, kabelgoot langsheen de gevels, airco en een lift.
Er is een halte van “De Lijn” net voor het Park (n° 4 (Haasrode-Leuven-Herent) en 630 (Haasrode-Leuven Station-Wijgmaal)).
De GreenHill Campus is makkelijk bereikbaar met de wagen en licht op amper 5 minuten van de E40 Brussel-Leuven-Luik (afrit 23a Haasrode Research).
Er is ook een restaurant met terras aanwezig in gebouw A van de campus.
Voor meer informatie kunt u contact opnemen met Steven Sagman op 0470/10.48.41 of per mail (ss@growners.be).
(Ref : GREENHILL F – Invest 790 m² - F01 + F02 + F12)