Recent nieuwbouw handelsgelijkvloers vlakbij Park Spoor Noord
De Bredastraat, vlakbij het groene Park Spoor Noord, met het hippe Eilandje als buur? Centraler wordt het niet! Dit handelsgelijkvloers is voorzien van vloerverwarming!
Wanneer je door de Bredastraat wandelt, springt het moderne, lichte appartementsgebouw er meteen uit. Door z’n frisse look én door z’n toplocatie, met het park in het verlengde van je straat!
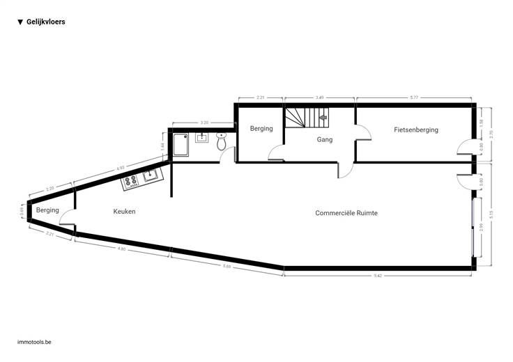
Aan de Linkerzijde vinden we hier een handel gelijkvloers terug. Het handel gelijkvloers bedraagt 97m² en is voorzien van een keukenblokje en een sanitaire ruimte uitgerust met douche, lavabo met meubel en toilet.
Het pand is zeer energiezuinig met zijn vloerverwarming en slimme thermostaten. Het betreft een riante ruimte, ideaal als atelier, kunstgalerij, kantoor, winkel,...
Absolute toplocatie op het Noord
Met het grote, groene Park, Spoor Noord als buur en het toffe Eilandje vlakbij, heb je hier een absolute toplocatie beet in een opkomende studentenbuurt. Het openbaar vervoer alsook verschillende fietsenstraten zijn goed vertegenwoordigd, winkels, universiteiten, hoge scholen en winkel, vindt u op wandel afstand. De talrijke nieuwbouwprojecten in de buurt, bieden een effectieve meerwaarde.
Bij interesse, gelieve uw kandidatuur te stellen via : https://www.immovasta.be/panden/gegevens/13632/