Te koop Huis

Beschrijving van   

Vergelijk realty's

Te koop Huis

Huis Huis Huis Huis
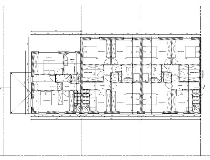
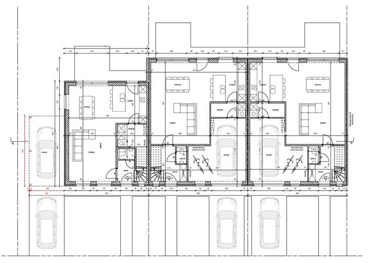
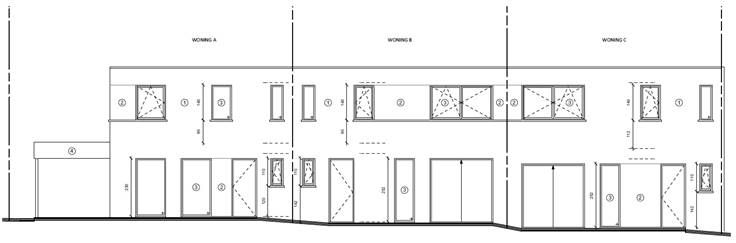
DENDERLEEUW - LOT 1 Op zoek naar een halfopen nieuwbouwwoning in Denderleeuw? Wij realiseren uw droomwoning helemaal naar jouw smaak. Bij ons bepaal jij de indeling, alle materiaal- en kleurkeuzes, zodat jouw woning volledig aansluit bij jouw wensen en levensstijl. Bovendien zetten we sterk in op duurzaamheid en energiezuinigheid, zodat jouw woning niet alleen klaar is voor vandaag, maar ook voor de toekomst. Specificaties: ·PVC-ramen met driedubbel glas; zonwerend glas op zuid- en westgevels ·Lucht-water warmtepomp met buitenunit en warmtepompboiler ·Vloerverwarming en koeling op alle verdiepingen voor optimaal comfort ·Zonnepanelen voor duurzame energie en energiebesparing ·Badkamer volledig betegeld en voorzien van handdoek radiator ·Moderne architectuur en strak design We begeleiden je graag van A tot Z bij het zorgeloos realiseren van jouw droomwoning. Het nieuwbouwproject is gelegen in een rustige wijk op slechts 1,9 km van het station van Denderleeuw, ideaal voor wie graag vlot toegang wil tot openbaar vervoer. Ook winkels, scholen en de belangrijkste invalswegen bevinden zich vlakbij. Samen zetten we de eerste stap richting jouw droomhuis! Neem gerust contact met ons op voor een vrijblijvend kennismakingsgesprek via christelle@immosafe.be of 0473 878 879.
Type vastgoed Huis
Prijs Op aanvraag
Bewoonbare opp. 131
Aantal slaapkamers 3
Aantal badkamers 1