Te koop Huis

Beschrijving van   

Vergelijk realty's

Te koop Huis

Huis Huis Huis Huis Huis Huis Huis Huis Huis Huis Huis Huis Huis
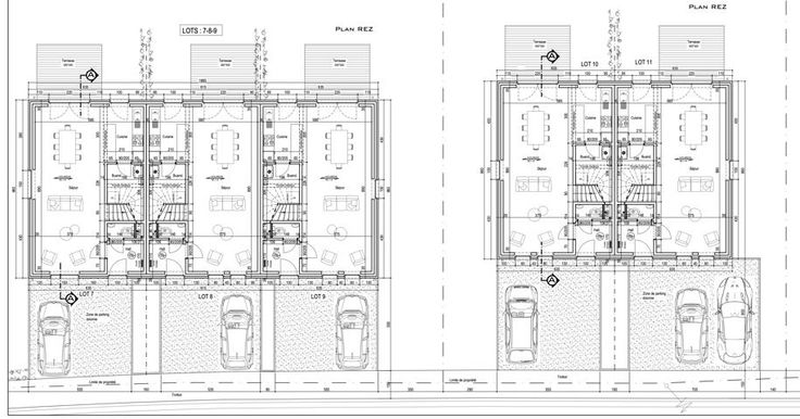
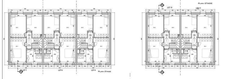
Alliance Partners vous propose un projet neuf de 16 maisons 2 et 3 façades sur la commune d'Harchies. Le projet s'étant sur la rue St-Roch et la rue du Calvaire. Celles-ci se composent comme suit : Rez-de-chaussée : Hall d'entrée (3,5m2), wc avec lave main, living (35m2), cuisine ouverte (6,5m2), buanderie (4,5m2). Étage 1 : Hall de nuit (3m2), chambre 1 (13,5m2), chambre 2 (12,5m2), chambre 3 (11,5m2), salle de bain avec wc (7,5m2). Étage 2 : Grenier aménageable (35m2). Techniques : Chauffage central gaz (radiateurs), production d'eau chaude sur la chaudière, raccordement à l'égout, cuisine équipée, citerne d'eau de pluie avec pompe intégrée (5000 litres), VMC, panneaux solaires, jardin aménagé et clôturé. Lot 1 : Maison 3 façades Lot 2 : Maison 2 façades Lot 3 : Maison 3 façades Lot 4 : Maison 3 façades Lot 5 : Maison 2 façades Lot 6 : Maison 3 façades Lot 7 : Maison 3 façades Lot 8 : Maison 2 façades Lot 9 : Maison 3 façades Lot 10 : Maison 3 façades Lot 11 : Maison 3 façades Lot 12 : VENDUE Lot 13 : VENDUE Lot 14 : Maison 3 façades Lot 15 : Maison 2 façades Lot 16 : Maison 3 façades Prix indicatif : 295.000 euros hors tva, hors frais d'achat et hors frais de raccordements Possibilité de TVA à 6% Fin des travaux prévue milieu 2025 ATTENTION , les surfaces des terrains ne sont pas confirmées et devront faire l'objet de modifications par le géomètre afin de créer un passage entre les propriété des 2 rues.
Type vastgoed Huis
Prijs 295.000
Bewoonbare opp. 120
Aantal slaapkamers 3
Aantal badkamers 1