Te koop Huis

Beschrijving van   

Vergelijk realty's

Te koop Huis

Huis Huis Huis Huis Huis
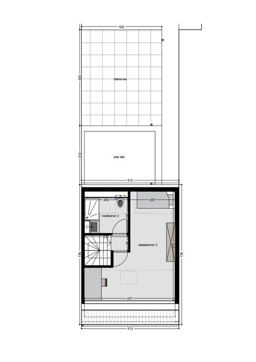
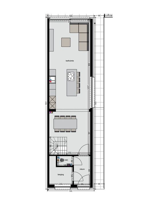
Aannemer verkoopt rechtstreeks met garantie. Een 100% instapklare vernieuwbouw energiezuinige woning met 3 slpk en 2 badkamers met inloopdouche en meubel, rme living, fietsenberging, 2 zonne terrassen en een tuintje….. Deze woning is verbouwd volgens de laatste strenge isolatie en ventilatienormen en heeft oa. een regenwaterrecuperatiepomp en zonnepanelen 4300WP. Epeil is 30 dus label A. Dit alles onder toezicht van een architect en energiedeskundige. De woning kan verkocht worden aan 6% en kopers kunnen nog tal van rennovatiepremies genieten. De woning zal klaar tegen aktedatum. Snelle beslissers hebben nog veel inspraakmogelijkheden. Info: TEL: 0475/251569 (7/7) GN IMMO AUB.
Type vastgoed Huis
Prijs 385.000
Bewoonbare opp. 150
Aantal slaapkamers 3
Aantal badkamers 2