Te koop nieuwbouw woning 8 in verkaveling met nieu...

Beschrijving van   

Vergelijk realty's

Te koop nieuwbouw woning 8 in verkaveling met nieuwste technieken

nieuwbouw woning 8 in verkaveling met nieuwste technieken nieuwbouw woning 8 in verkaveling met nieuwste technieken nieuwbouw woning 8 in verkaveling met nieuwste technieken nieuwbouw woning 8 in verkaveling met nieuwste technieken nieuwbouw woning 8 in verkaveling met nieuwste technieken nieuwbouw woning 8 in verkaveling met nieuwste technieken
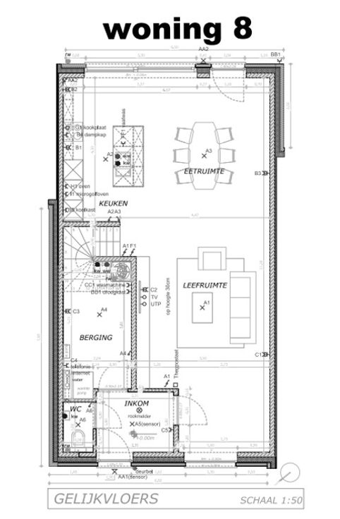
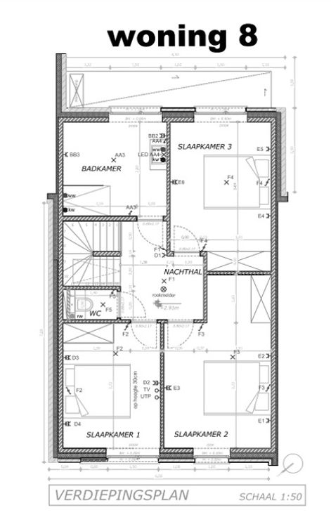
Betaalbare nieuwbouw woningen met hoge afwerkingsgraad en moderne verwarmings- en koelingstechnieken. Indeling Woning: * inkom * toilet (2*) * woonkamer * open keuken * wasruimte * 3 slaapkamers * badkamer * zolder * tuin * parkeerplaats De woningen worden uitgerust met kwalitatieve toestellen en hoogwaardige technieken: zonnepanelen, ventilatiesysteem, verwarming en koeling op een geïntegreerd systeem, ... Deze woning wordt verkocht onder de wet Breyne met BTW stelsel op de constructie en verkooprechten op de grondwaarde. Meer info op kantoor.
Type vastgoed Huis
Prijs 346.400
Bewoonbare opp. 143
Aantal slaapkamers 3
Aantal badkamers 1