Te koop Unieke open bebouwing op ruim perceel grond te Schoonaarde!
Deze vrijstaande woning biedt een unieke kans voor wie op zoek is naar een te renoveren eigendom of volledig nieuw te bouwen woning op een uitzonderlijk ruim perceel. Gelegen op een riant perceel van meer dan 39 are, met een indrukwekkende breedte van zo'n 40 meter, biedt dit pand niet alleen veel ruimte, maar ook een prachtig uitzicht op de omliggende groene velden. De rustige, landelijke ligging maakt dit een ideale plek voor wie houdt van privacy en natuur.
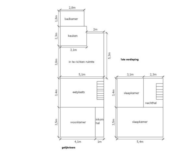
De huidige indeling omvat een inkomhal, een woonkamer, een eetplaats, een zithoek, een keuken, badkamer en twee slaapkamers. De zolder, bereikbaar via een vaste trap, biedt bovendien extra mogelijkheden om verder uit te breiden. De aanwezigheid van diverse bijgebouwen biedt extra flexibiliteit en is ideaal voor opslag of het uitoefenen van een vrij beroep.
Met zijn unieke ligging en veelzijdig potentieel is dit een droomproject voor wie op zoek is naar ruimte, rust en de kans om een woning volledig naar eigen smaak te creëren!
Rustig en landelijk gelegen te Schoonaarde doch op korte afstand van centrum Dendermonde! Meer info te verkrijgen via tijl@immotijl.be of 0477 44 86 11.