Te koop Huis

Beschrijving van   

Vergelijk realty's

Te koop Huis

Huis Huis Huis Huis Huis Huis Huis Huis Huis
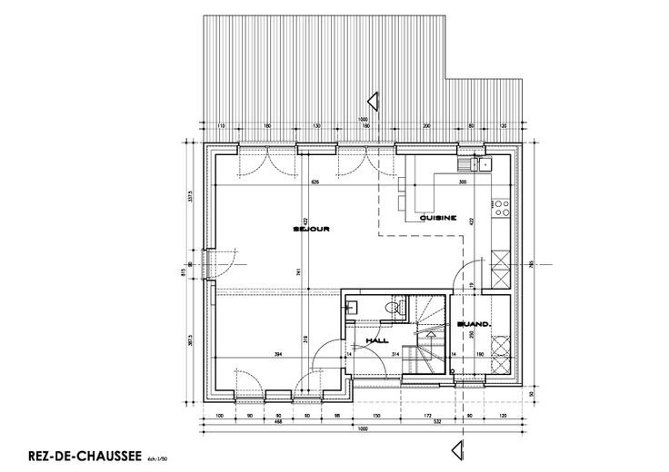
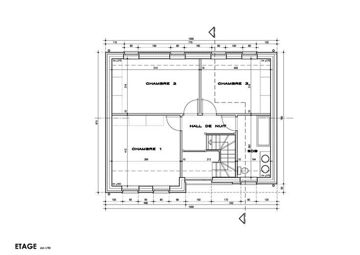
Vous êtes à la recherche d'un terrain bâtir dans la province du Brabant Wallon ? Maisons Compère, vous propose ce superbe terrain à bâtir qui se situe dans la belle entité de Jodoigne. Ce terrain, qui est entièrement plat, bénéficie de 18 mètres de façade pour une superficie totale de 941 m². Il est situé à égale distance de Bruxelles et Liège (45 minutes). La E40, est accessible en moins de 5 minutes en voiture. La situation est vraiment stratégique pour les personnes qui recherchent un cadre de vie tranquille. Nous vous proposons un projet d'une construction 4 façades de 150 m². Celui-ci se compose, au rez-de-chaussée, d'un hall d'entrée donne accès à un WC ainsi qu'à la cage d'escalier. Vous retrouverez également un superbe séjour ouvert sur une très belle cuisine en "U" très lumineuse grâce à de belles baies vitrées. Une buanderie sera également présente au rez-de-chaussée. Vous aurez accès, à l'étage, à 3 chambres à coucher ainsi qu'à une salle de bain par le biais d'un beau hall de nuit. Ce projet de construction est entièrement personnalisable en fonction de vos désirs. Venez découvrir ce superbe projet qui vous est proposé au prix de 380.059,05 € HTVA et frais d'architecte. Intéressé par ce projet ? Monsieur Mariani (IPI 103.174) reste disponible au 0475/23.62.76 durant les heures de bureau
Type vastgoed Huis
Prijs 380.059
Aantal slaapkamers 3
Aantal badkamers 1