Te koop Bouwgrond

Beschrijving van   

Vergelijk realty's

Te koop Bouwgrond

Bouwgrond Bouwgrond Bouwgrond Bouwgrond Bouwgrond Bouwgrond Bouwgrond Bouwgrond Bouwgrond Bouwgrond Bouwgrond
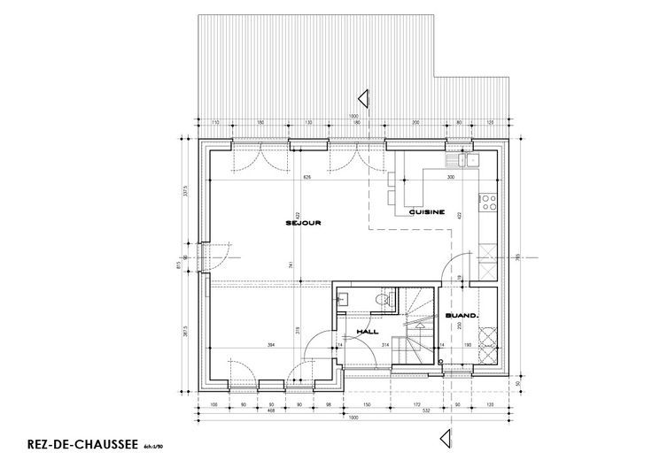
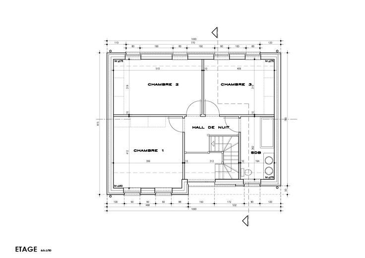
Ce projet est entièrement modulable selon vos envies et vos désirs. C'est sur ce superbe terrain à bâtir, situé dans un cadre campagnard, que nous vous proposons un projet d'une construction 4 façades, dans un charmant village du nom de Ernage (Gembloux). Ce terrain possède une superficie de 801m², une façade de 18 mètres ainsi que 45 mètres de profondeur. L'emplacement de ce terrain est très avantageux, se trouvant à seulement une minute d'un arrêt de bus et à moins de cinq minutes des commodités comme des restaurants, supermarchés et stations-service. De plus, l'accès à la E411, qui permet de rejoindre Namur/Bruxelles en un rien de temps, est à moins de 10 minutes. Nous vous proposons un projet de construction 4 façades de 150m² se composant comme suit : Au rez-de-chaussée, vous allez pouvoir retrouver un hall d'entrée avec un WC, un séjour hyper lumineux, une cuisine ouverte ainsi qu'une buanderie. Un hall de nuit, se trouvant à l'étage, vous donnera accès à 3 chambres à coucher et à une salle de bain. Prix du terrain + projet de construction : 347 753€ HTVA et frais d’architecte. Le prix est à titre indicatif et pourra être modifié à la suite d'une modification du projet. Si vous désirez plus de renseignements, nous restons disponibles durant les heures de bureau.
Type vastgoed Grond
Prijs 155.000