Te koop Huis

Beschrijving van   

Vergelijk realty's

Logo
Ligging
6200 CHÂTELET
Contactgegevens
Century 21 Iris-Concept
+32071960367
E-mail deze adverteerder
BEWAREN
DOORSTUREN

Te koop Huis

Huis Huis Huis Huis Huis Huis Huis Huis Huis Huis Huis Huis Huis Huis Huis Huis Huis Huis Huis Huis Huis
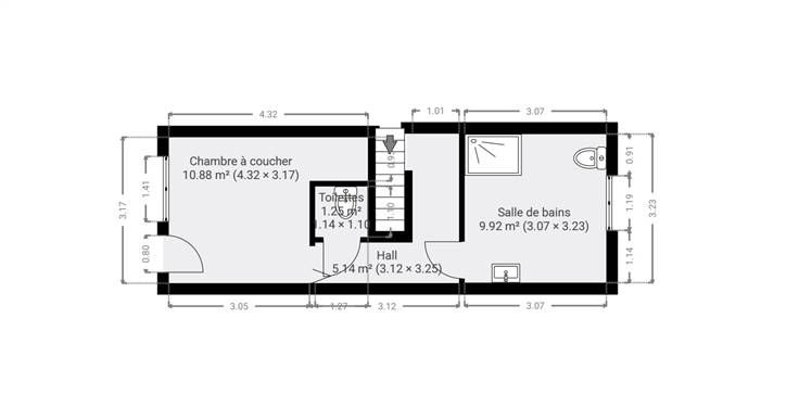
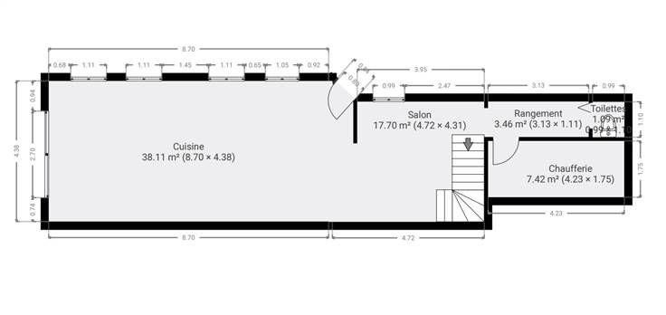
Sorry er is geen nederlandse vertaling beschikbaar. *****SOUS OPTION*****Century 21 iris-concept vous présente une agréable maison située à Châtelet. La maison est située proche du ring de Châtelet ainsi que proche des facilités, elle est composée d'un grand living, une cuisine équipée, une buanderie, 4 chambres, une salle de bain et 2 wc. Châssis en pvc double vitrage, 2 garages derrière la maison, terrasse + jardin, vide ventilé, panneaux photovoltaïques. Faire offre à partir de 199 900€ (sous réserve d'acceptation des propriétaires) Infos et visites au 071/96.03.67 ou sur info@century21iris-concept.be
Type vastgoed Huis
Prijs Op aanvraag
Bewoonbare opp. 124
Aantal slaapkamers 4