Te koop Huis

Beschrijving van   

Vergelijk realty's

Logo
Ligging
6200 Châtelet
Contactgegevens
Century 21 Iris-Concept
+32071960367
E-mail deze adverteerder
BEWAREN
DOORSTUREN

Te koop Huis

Huis Huis Huis Huis Huis Huis Huis Huis Huis Huis Huis Huis Huis Huis Huis Huis Huis Huis Huis
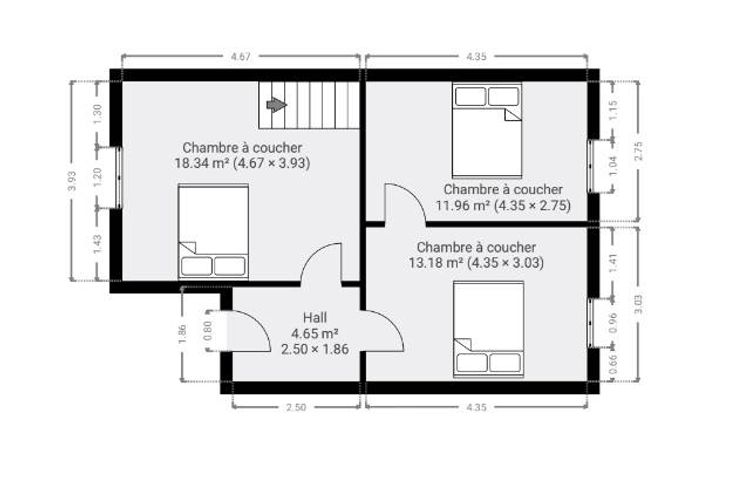
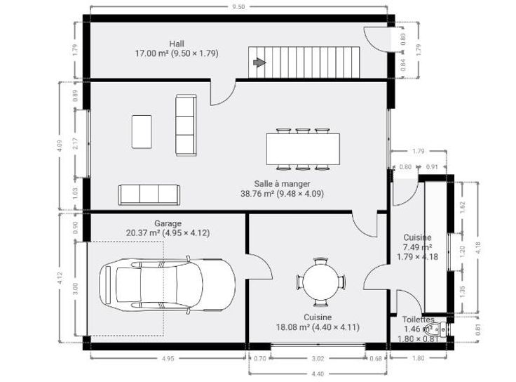
Sorry er is geen nederlandse vertaling beschikbaar. Century21 iris-concept vous propose cette maison de Maître située à Châtelet. La maison est composée au rez-de-chaussée d'un salon lumineux, une salle à manger, une cuisine, une arrière cuisine et un wc. Au premier étage, vous trouverez deux chambres, une salle de bain et une buanderie. Au deuxième étage, vous disposerez de deux grandes chambres supplémentaires et d'un dressing. Le bien dispose également d'une cave, d'un grenier, d'une terrasse, d'un petit jardin, d'un garage et de deux places de parking extérieur. La maison est en très bon état général et n'attend plus que vous. Faire offre à partir de 235 000€ (sous réserve d'acceptation du propriétaire). Infos et visites au 071/96.03.67 ou sur info@century21iris-concept.be
Type vastgoed Huis
Prijs 235.000
Bewoonbare opp. 227
Aantal slaapkamers 6
Aantal badkamers 1