Te koop Huis

Beschrijving van   

Vergelijk realty's

Logo
Ligging
6200 Châtelet
Contactgegevens
Century 21 Iris-Concept
+32071960367
E-mail deze adverteerder
BEWAREN
DOORSTUREN

Te koop Huis

Huis Huis Huis Huis Huis Huis Huis Huis Huis Huis Huis Huis Huis Huis Huis Huis Huis Huis Huis
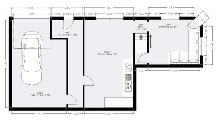
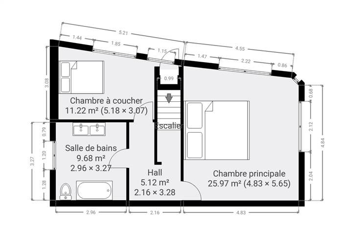
Sorry er is geen nederlandse vertaling beschikbaar. *****SOUS OPTION*****Century 21 iris-concept vous propose une maison récemment rénovée à vendre à Châtelet. La maison est composée au rez-de-chaussée d'un séjour très lumineux, une cuisine ouverte sur la salle à manger, ainsi qu'un garage une voiture. A l'étage vous trouverez une première grande chambre de 26m2, une chambre d'enfant de 12m2 ainsi qu'une salle de bain. Vous disposez également d'un grand grenier aménageable en deux chambres supplémentaires. Tout le plafonnage de la maison vient d'être refait, châssis en pvc double vitrage, électricité conforme, toiture isolée, nouveaux carrelages , cave, garage, une terrasse a été aménagée au dessus du garage (à régulariser par l'acquéreur)les arrivées d'eau ainsi que les évacuations sont prévues pour faire une salle de douche au rez-de-chaussée. Faire offre à partir de 165 000€ (sous réserve d'acceptation des propriétaires) Infos et visites au 071/96.03.67 ou sur info@century21iris-concept.be
Type vastgoed Huis
Prijs 165.000
Bewoonbare opp. 170
Aantal slaapkamers 2
Aantal badkamers 1