Te koop Commercieel

Beschrijving van   

Vergelijk realty's

Logo
Ligging
6041 Gosselies
Contactgegevens
Century 21 Iris-Concept
+32071960367
E-mail deze adverteerder
BEWAREN
DOORSTUREN

Te koop Commercieel

Commercieel Commercieel Commercieel Commercieel Commercieel Commercieel Commercieel Commercieel Commercieel
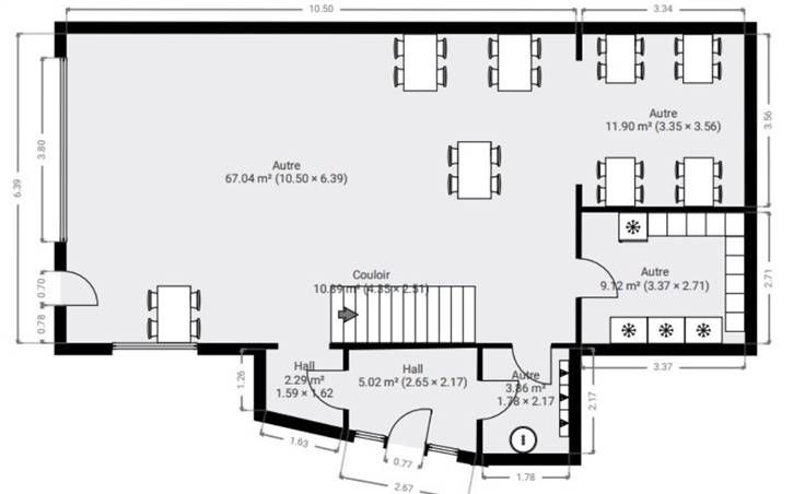
Sorry er is geen nederlandse vertaling beschikbaar. Century 21 iris-concept vous propose dans le centre de Gosselies, un rez-commercial à vendre. Vous trouverez un snack très fréquenté par les écoles, actuellement loué (1000 €/mois). Il est prêt à accueillir une activité de restauration, un café ou tout autre commerce, sans nécessiter de travaux importants. Faire offre à partir de 125 000€ (sous réserve d'acceptation des propriétaires) Infos et visites au 071/96.03.67 ou sur info@century21iris-concept.be
Type vastgoed Commercieel
Prijs 125.000