Te koop Uniek gelegen bouwgrond voor Half open beb...

Beschrijving van   

Vergelijk realty's

Te koop Uniek gelegen bouwgrond voor Half open bebouwing

Uniek gelegen bouwgrond voor Half open bebouwing Uniek gelegen bouwgrond voor Half open bebouwing Uniek gelegen bouwgrond voor Half open bebouwing Uniek gelegen bouwgrond voor Half open bebouwing Uniek gelegen bouwgrond voor Half open bebouwing Uniek gelegen bouwgrond voor Half open bebouwing Uniek gelegen bouwgrond voor Half open bebouwing Uniek gelegen bouwgrond voor Half open bebouwing Uniek gelegen bouwgrond voor Half open bebouwing
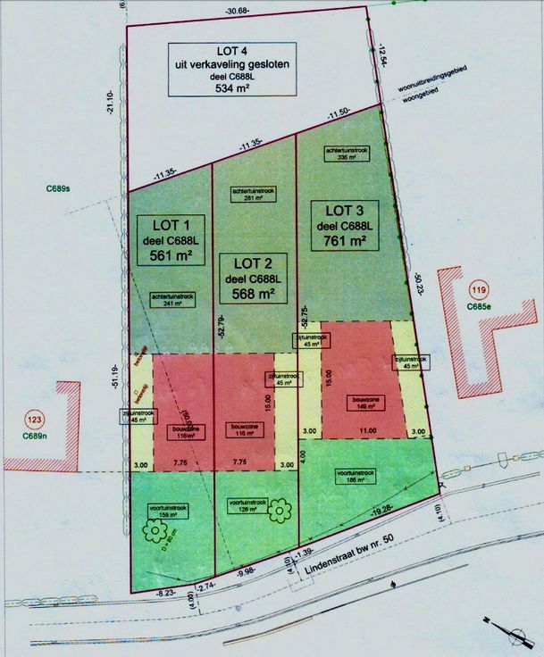
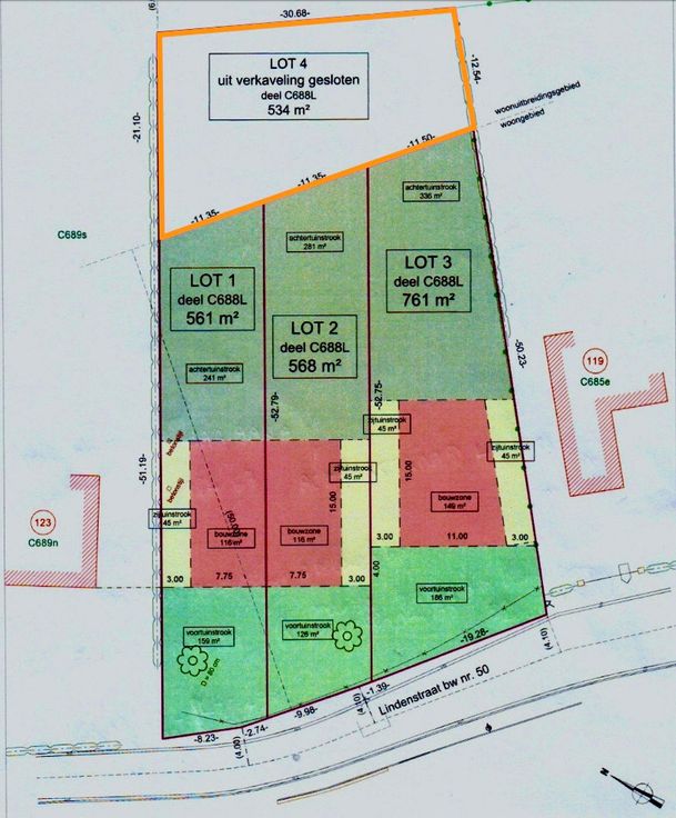
In deze residentiële, landelijke en uiterst rustige omgeving, aan de stadsrand van Aalst met vlotte verbinding naar het volle centrum, station en oprit autostrade, een bouwgrond voor half open bebouwing van 568 m2. 9,98m breed en 52,79 meter diep. Mogelijkheid om tuin uit te breiden met extra 534 m2 (lot 4) UNIEKE AANBIEDING !!
Type vastgoed Grond
Prijs 227.000