Te huur Goed gelegen commercieel handelspand

Beschrijving van   

Vergelijk realty's

Te huur Goed gelegen commercieel handelspand

Goed gelegen commercieel handelspand Goed gelegen commercieel handelspand Goed gelegen commercieel handelspand Goed gelegen commercieel handelspand Goed gelegen commercieel handelspand Goed gelegen commercieel handelspand Goed gelegen commercieel handelspand Goed gelegen commercieel handelspand Goed gelegen commercieel handelspand Goed gelegen commercieel handelspand Goed gelegen commercieel handelspand Goed gelegen commercieel handelspand
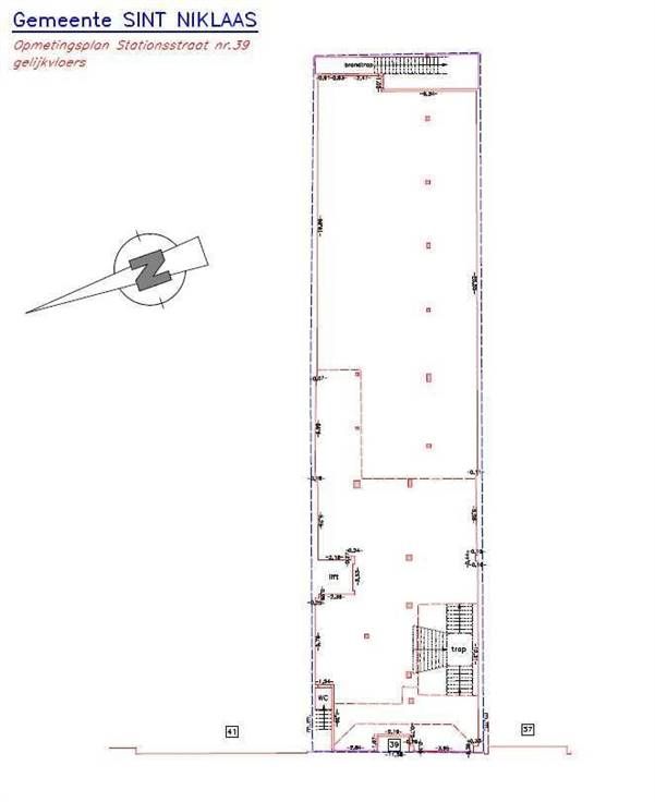
Dit moderne handelspand is gelegen in hartje Sint-Niklaas en op wandelafstand van scholen, winkels en openbaar vervoer. Met een mobiscore van 9,3/10 is werkelijk alles vlakbij! Ook de E17 en N70 zijn vlot bereikbaar. Het pand beschikt over een gelijkvloerse oppervlakte van ca. 520m². Bijkomstig is er een mezzanine van ca. 225m² die kan gebruikt worden als stockageruimte en/of een bureel. U heeft de optie om het pand te kopen. Plan snel uw bezoek in en laat u verrassen door het potentieel van dit pand! voor meer info www.quares.be
Type vastgoed Commercieel
Prijs 2.750