Te koop Huis

Beschrijving van   

Vergelijk realty's

Te koop Huis

Huis Huis Huis Huis Huis Huis Huis Huis Huis Huis Huis Huis Huis Huis Huis Huis
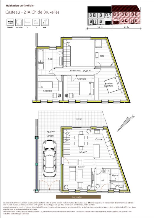
Immaxe vous propose une très belle maison spacieuse et lumineuse récemment construite a Casteau-Soignies Avec ses 168 m² habitable et ses espaces extérieurs, elle répondra parfaitement aux besoin d'une famille ou un projet de vie confortable et fonctionnel. Compose de trois chambres lumineuse et confortable, une salle de bain et une salle de douche dans la suite parentale, un séjour spacieux de 62 m2 offrant un espace convivial et ouvert, cuisine super équipée pratique et élégante; A l'extérieur on trouve une belle terrasse, jardin et un carport pour abriter une voiture. Idéalement situe a proximité des commerces, des écolés ,de la base SHAPE et des grands axes routiers, cette maison est un coup de cœur assure. Laissez-vous séduire par cette opportunité unique et planifié des maintenant une visite avec Immaxe.
Type vastgoed Huis
Prijs 329.000
Aantal slaapkamers 3
Aantal badkamers 1