Te koop Huis

Beschrijving van   

Vergelijk realty's

Te koop Huis

Huis Huis Huis Huis Huis Huis
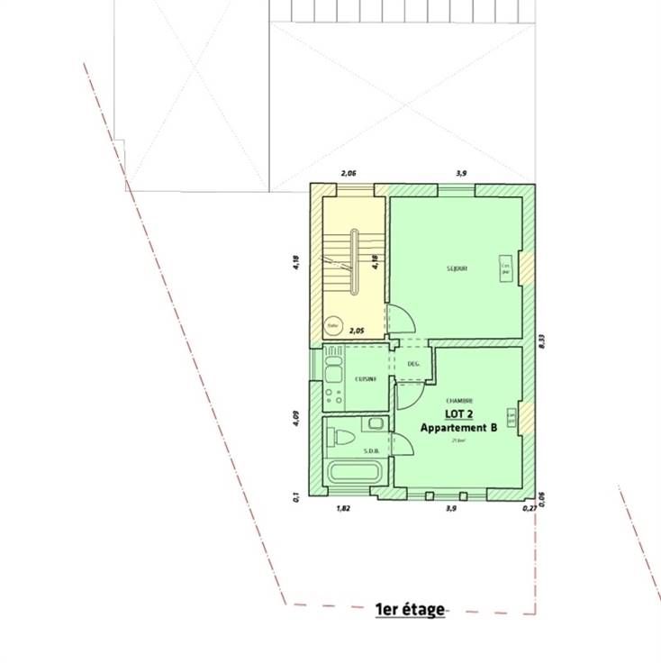
GO Immobilier biedt u een goede investering in Waver aan met dit kleine gebouw bestaande uit 3 percelen: een gelijkvloers met 2 slaapkamers, 1 appartement met 1 slaapkamer op de 1e verdieping, en een studio op de 2e verdieping. Alles wordt verhuurd voor € 1.900/maand (€ 2.100 indien geïndexeerd). “De makelaar houdt zich niet bezig met veilingen, een monopolie van notarissen. Zij aanvaardt op geen enkele wijze het recht om te verkopen of om een minimumprijs vast te stellen die vereist is in de ontvangen overnameaanbiedingen. Deze twee aandelen behoren exclusief toe aan de eigenaar, die, indien hij besluit te verkopen, dus nooit automatisch gebonden zal zijn aan het hoogste ingezamelde bod, maar aan het bod dat het beste aan zijn eigen eisen voldoet (deadline voor ondertekening, opschortende voorwaarde, voorgestelde prijs, enz.). De genoemde prijs is slechts een vanafprijs. »
Type vastgoed Appartement
Prijs 115.000
Bewoonbare opp. 32
Aantal slaapkamers 1
Aantal badkamers 1