Te koop Villa

Beschrijving van   

Vergelijk realty's

Te koop Villa

Villa Villa Villa Villa Villa Villa
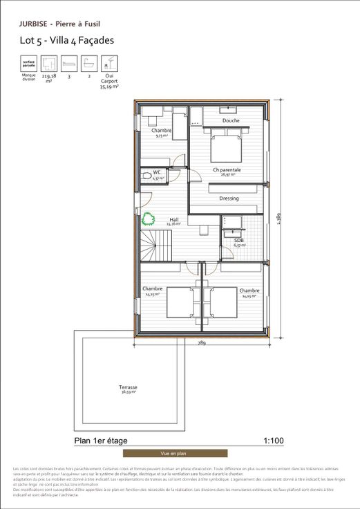
A Mansuy Saint-Pierre, dans un endroit calme, boisé, retire de toute agglomération ,une villa neuve de 220 m² construite sur un très beau terrain de presque 12 ares, vous offre des grands espaces a vivre. Compose de quatre chambres, un bureau, deux toilettes, deux salles de bain, buanderie et un séjour-cuisine de 78 m². Vendu en état semi-finalisé afin de vous laisser libre votre imagination pour les dernières touches de finition. Dossier en agence.
Type vastgoed Huis
Prijs 455.000
Aantal slaapkamers 4
Aantal badkamers 1