Ceci est une idée de projet, avec une liberté totale de modification pour construire la maison de vos rêves.
Nous vous proposons ce projet sur un superbe terrain à bâtir, situé dans un cadre campagnard, dans le charmant village de Hody (Anthisnes). Ce terrain possède une superficie de 1235 m², une façade de 19 mètres et une profondeur de 50 mètres.
L'emplacement de ce terrain est très avantageux, à seulement 1min d'un arrêt de bus et à moins de 10 minutes des commodités. De plus, l'accès à l'autoroute E25 est à moins de 15minutes, ce qui permet de rejoindre liège en un rien de temps.
Ce terrain vous est proposé avec un projet de construction d'une maison 4 façades.
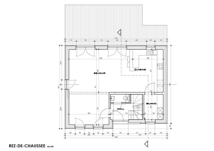
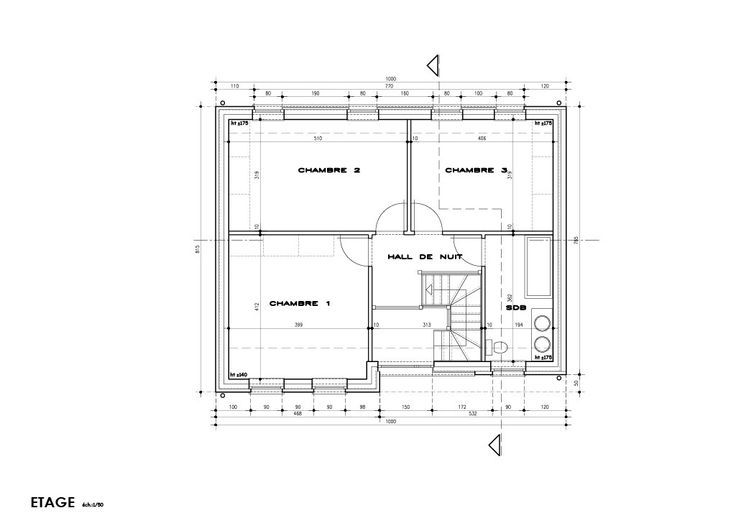
Description du projet proposé, Maison 4 façades de 150m2 :
Au rez-de-chaussée, vous serez accueilli par un hall d'entrée qui mène à un séjour lumineux, accompagné d'une cuisine ouverte, d'une buanderie et d'un WC.
À l'étage, un hall de nuit vous dirigera vers une belle salle de bain et 3 chambres spacieuses, toutes conçues pour vous offrir un confort inégalé.
Prix : terrain + projet de construction : 298 556€ Hors frais
Le prix est donné à titre indicatif et pourra être modifié en fonction des ajustements apportés au projet.
Pour plus de renseignements, nous restons disponibles durant les heures de bureau.