Te huur BEN-appartement op gelijkvloers in Kontich...

Beschrijving van   

Vergelijk realty's

Te huur BEN-appartement op gelijkvloers in Kontich met 2 slpks !

BEN-appartement op gelijkvloers in Kontich met 2 slpks ! BEN-appartement op gelijkvloers in Kontich met 2 slpks ! BEN-appartement op gelijkvloers in Kontich met 2 slpks ! BEN-appartement op gelijkvloers in Kontich met 2 slpks !
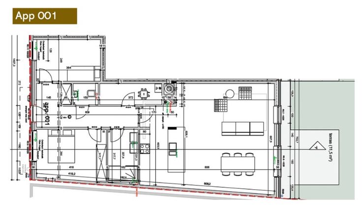
Dit nieuwbouw (2022) BEN gelijkvloers appartement ligt echt midden in het centrum van Kontich. Alle kleinhandelaars, gaande van de lekkerste bakker, slager, traiteur, boekenwinkel, kledingwinkels, kapper, banken, chocolatier en viswinkel zijn binnen wandelafstand ! Het energiezuinig appartement werd volledig uitgerust met kwaliteitsmaterialen, dit gecombineerd met het gemoedelijk karakter van Kontich zorgt voor zorgeloos wooncomfort. We komen binnen via je eigen private inkomhal met gastentoilet, deze leidt je naar alle verschillende kamers. De twee slaapkamers liggen aan de voorzijde van het appartement, centraal vinden we een ruime bergruimte en mooie kwaliteitsvolle ingerichte badkamer met inloopdouche. Achteraan kan je genieten van in een lichtrijke leefruimte met open keuken en zicht op de gemeenschappelijke tuin en private terras. Mogelijkheid tot het bijhuren van een ondergrondse staanplaats. Het appartement beschikt over individuele zonnepanelen, zonnewerend en isolerend buitenschrijnwerk, regenwaterrecuperatie voor toilet en ventilatiesysteem type C+ met Health-box (Renson). Er is tevens een lift tot op de ondergrondse verdieping, gemeenschappelijke fietsen- en afvalberging. de Huisleverancier : Persoonlijk, voor iedereen Service, Kwaliteit en Vertrouwen ! E-Peil : E-18 EPC-waarde : 28 kWh/m2/jaar (Label A) Renovatieplicht: nee
Type vastgoed Appartement
Prijs 1.170
Bewoonbare opp. 108
Aantal slaapkamers 2
Aantal badkamers 1