Te koop Grond

Beschrijving van   

Vergelijk realty's

Te koop Grond

Grond Grond Grond Grond Grond Grond Grond Grond Grond Grond Grond Grond Grond Grond Grond Grond Grond Grond Grond Grond
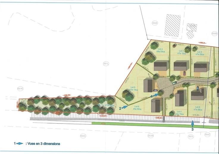
COURT-SAINT-ETIENNE, aan de rand van de RAVEL, midden in de natuur, in een woonwijk en groene ruimtes, maar 15' te voet van het centrum van Court, 1500 meter van het STATION van de RAVEL, 250 meter van een bushalte! Je zult versteld staan van deze oase van natuur! Het stuk grond is geschikt voor de bouw van 9 villa's (permanente woningen), waardoor een geweldige buurt ontstaat waar kinderen in alle veiligheid kunnen spelen en fietsen. De percelen van het project liggen rond een kleine weg die al is aangelegd. De onbebouwde percelen zijn vrij van bouwers en zijn al voorzien van water/gas/elektriciteit/telefoon/internet/riolering met een rioolinspectiekamer op elk perceel. De kosten voor het markeren, meten en aansluiten van de grenzen zijn voor rekening van de koper. De bouw van de villa kan ook de bouw van een secundair volume van maximaal 45M² omvatten, vrije beroepen worden geaccepteerd. Kavel nummer 8, met privacy onderaan de urbanisatie, ligt op het ZUIDOOSTEN en heeft een oppervlakte van 7a35ca met een frontbreedte van +/-23.11Mètres, achterbreedte +/- 23.45Mètres, rechterdiepte +/- 31.34Mètres, linkerdiepte +/- 32.71Mètres. Dit is een unieke kans om je mooiste project te realiseren dicht bij de assen die je dierbaar zijn en toch midden in de natuur. Wil je het bezoeken? Volledige beschrijving alleen op www.valdelimmo.be. Volledig dossier beschikbaar.
Type vastgoed Grond
Prijs 195.000