Te koop Huurkoop/ kopen mogelijk! App. 2de verdiep...

Beschrijving van   

Vergelijk realty's

Te koop Huurkoop/ kopen mogelijk! App. 2de verdiep. 2 slpks ,terras!

Huurkoop/ kopen mogelijk! App. 2de verdiep. 2 slpks ,terras! Huurkoop/ kopen mogelijk! App. 2de verdiep. 2 slpks ,terras! Huurkoop/ kopen mogelijk! App. 2de verdiep. 2 slpks ,terras! Huurkoop/ kopen mogelijk! App. 2de verdiep. 2 slpks ,terras!
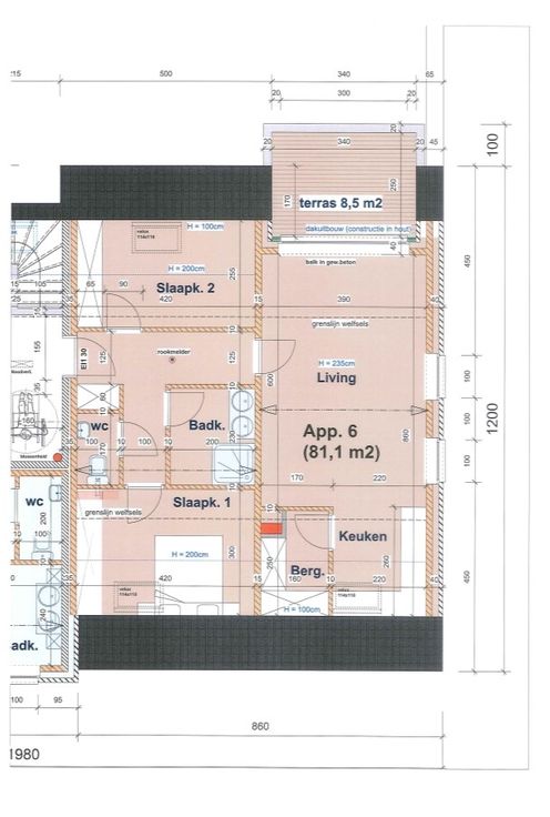
Huurkoop/ kopen mogelijk!!!! Moderne nieuwbouwapp. te koop op toplocatie! Elk app. beschikt over grote raampartijen een zonnig Zuid-West gericht terras, variërend van 2 tot 4 slpks en een berging! Op de begane grond bevinden zich twee app. met een terras, berging en privétuin. De eerste verd. heeft twee app. met terras en berging, terwijl de tweede verd. nog twee app. met afzonderlijke berging en terras biedt. Met bewoonbare opp. variërend van 65,60m² tot 131,29m². De prijzen voor deze app. zonder bijkomende kosten variëren tussen € 205 960,18 en € 397 989,27. Indeling van appartement 6 op de tweede verdieping omvat een woonkamer, keuken, berging, badkamer, 2 slaapkamers, een toilet, een terras, een extra berging (aangeduid in rood op het plattegrond). Het bruto bewoonbare oppervlak van dit appartement bedraagt 65,60m². Het terras is 8,50m² en de berging is 6,89m². De totale prijs voor dit appartement, inclusief berging, btw en registratie, bedraagt € 246179,43 exclusief de kosten voor de parkeerplaats(en). Daarnaast zijn er in totaal 9 ondergrondse parkeerplaatsen. De aankoop van 1 tot 2 parkeerplaatsen bij het appartement is verplicht, maar er is flexibiliteit in de keuze van de locatie, met prijzen variërend van € 20 095,35 tot € 36 464,65 exclusief bijkomende kosten. Neem contact met ons op via 0476/750281 of stuur een e-mail naar info@immowel.be
Type vastgoed Appartement
Prijs 205.960
Aantal slaapkamers 2