Te koop Huis

Beschrijving van   

Vergelijk realty's

Te koop Huis

Huis Huis Huis Huis Huis Huis Huis Huis
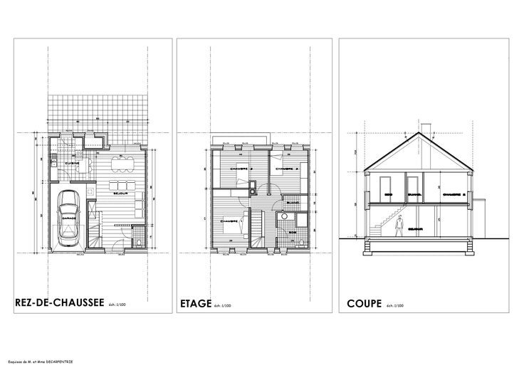
Ceci est une idée de projet, avec une liberté totale de modification pour construire la maison de vos rêves et votre budget. Maisons Compère a l'honneur de vous présenter ce magnifique terrain à bâtir, idéalement situé à Racour - Lincent. Ce bien se distingue par une superficie généreuse de 1.034 m², avec une façade à rue de 11 mètres et une profondeur de 99 mètres. Son emplacement privilégié vous permettra de bénéficier de l'ensemble des commodités dans un rayon de 5 km, incluant les restaurants, supermarchés et établissements scolaires. L'accès à l'autoroute E40 se trouve à moins de 6 km. Nous vous proposons un projet de construction d'une maison dans un environnement paisible, d'une superficie de 125 m². Ce modèle est agencé de la manière suivante : - Un hall d'entrée accueillant qui sera agrémenté d'un WC. - Un séjour lumineux, grâce à une vaste baie vitrée, offrant une vue imprenable sur votre futur jardin, ainsi qu'une cuisine fonctionnelle. - Un hall de nuit à l'étage menant à trois chambres spacieuses, à une salle de bain entièrement équipée, dotée d'une baignoire et d'une douche, ainsi qu'une buanderie. Prix : terrain + projet de construction : 268 650€ HTVA Le prix est donné à titre indicatif et pourra être modifié en fonction des ajustements apportés au projet. Les frais d'architecte sont également à prévoir. Pour plus de renseignements, nous restons disponibles durant les heures de bureau.
Type vastgoed Huis
Prijs 268.650
Bewoonbare opp. 125
Aantal slaapkamers 3
Aantal badkamers 1