Te koop Sint-Niklaas, Sparrenhofstraat - Fase 1: Lot 20
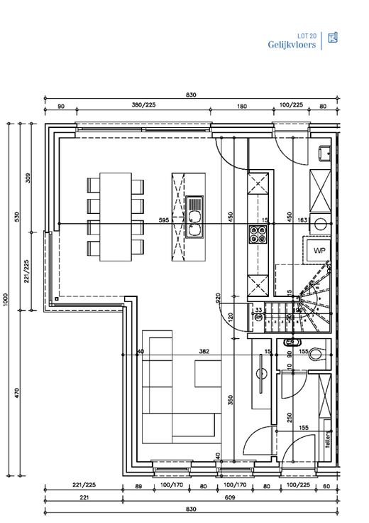
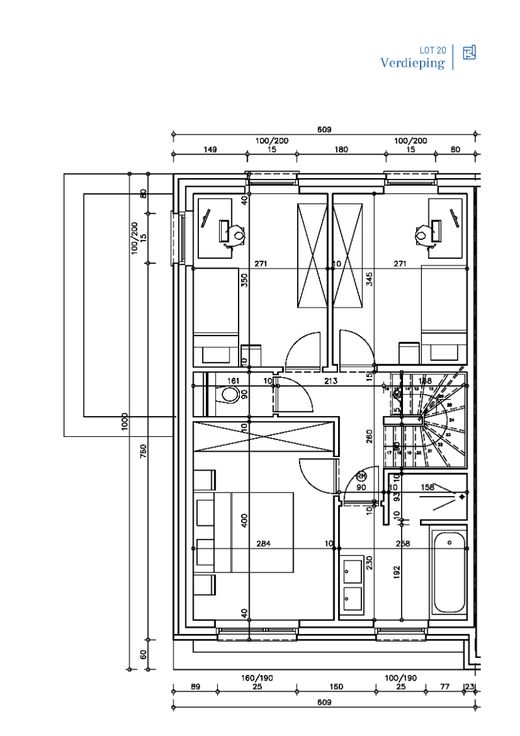
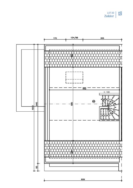
ENERGIEZUINIG WONEN - E20 - VASTE PRIJS - ALL IN AFWERKING OP MAAT! Deze halfopen woning (LOT 20) is voorzien van een doordachte planindeling met veel lichtinval en een optimale ruimtebenutting. Op het gelijkvloers is er een inkom met gastentoilet, een ruime leefruimte met bureauhoek, een open keuken en een grote wasplaats/berging. Op de eerste verdieping bevinden zich 3 slaapkamers, een apart toilet en een badkamer met bad+inloopdouche. De praktische zolder is bereikbaar met een vaste trap, hier kan perfect een vierde slaapkamer gemaakt worden! In deze VASTE PRIJS zijn alle energiezuinige technieken (warmtepomp, zonnepanelen, ventilatie D, vloerverwarming op beide verdiepingen,...) én ruime afwerkingsbudgetten (keuken, badkamer, vloeren, deuren,...) inbegrepen! Klaar voor een zorgeloos bouwavontuur? Contacteer ons voor meer info via Ewout Vanden Bussche(bouwadviseur) - 0497 588 888 - contact@huysmanbouw.be
Renovatieplicht: onbekend