Te koop Vergund nieuwbouwproject pal in het centrum

Beschrijving van   

Vergelijk realty's

Te koop Vergund nieuwbouwproject pal in het centrum

Vergund nieuwbouwproject pal in het centrum Vergund nieuwbouwproject pal in het centrum Vergund nieuwbouwproject pal in het centrum Vergund nieuwbouwproject pal in het centrum Vergund nieuwbouwproject pal in het centrum Vergund nieuwbouwproject pal in het centrum Vergund nieuwbouwproject pal in het centrum Vergund nieuwbouwproject pal in het centrum Vergund nieuwbouwproject pal in het centrum Vergund nieuwbouwproject pal in het centrum Vergund nieuwbouwproject pal in het centrum Vergund nieuwbouwproject pal in het centrum
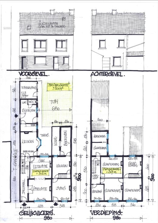
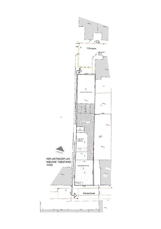
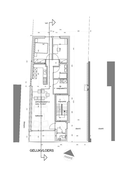
Leuk nieuwbouwproject met een goedgekeurde vergunning voor het bouwen van 3 appartementen en 4 parkeerplaatsen pal in het centrum van Lendelede. Indeling: - GLV: Appartement 76m² met private tuin en doorgang naar 4 achterliggende staanplaatsen - 1e: 3-slaapkamer appartementen van 95m² met terras - 2e: 3-slaapkamer appartementen van 95m² met terras De plannen zijn terug te vinden via onze site.
Type vastgoed Grond
Prijs 195.000