Te koop Bouwgrond

Beschrijving van   

Vergelijk realty's

Te koop Bouwgrond

Bouwgrond Bouwgrond Bouwgrond Bouwgrond Bouwgrond Bouwgrond Bouwgrond Bouwgrond Bouwgrond Bouwgrond Bouwgrond Bouwgrond
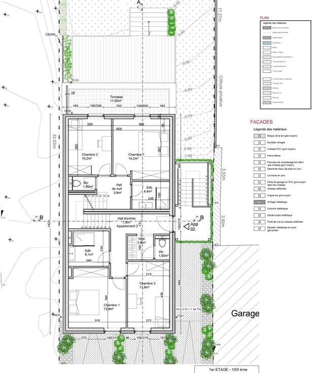
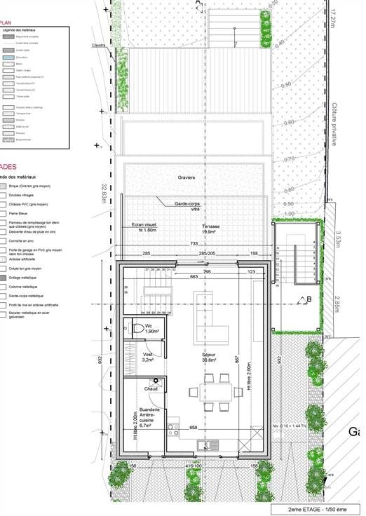
Sorry er is geen nederlandse vertaling beschikbaar. Le bureau IMMEXPERTS vous présente : Idéalement situé à ANDENNE (SEILLES), en bord de Meuse, terrain à bâtir d'une superficie de +- 3 ares AVEC PERMIS D'URBANISME pour la construction d'un immeuble de 2 appartements (duplex) avec 2 garages et 2 places de parking. Permis obtenu en 2023 (consultable sur demande) - Sans obligation d'architecte - orientation arrière vue Meuse plein SUD ! Prix de vente : 80.000 euros (soumis à l'acceptation du propriétaire se réservant le droit d'accepter ou de refuser une offre selon d'autres éléments que le prix). Informations et visites : bureau@immexperts.be - 085/84.41.91
Type vastgoed Grond
Prijs 80.000