Te koop horeca

Beschrijving van   

Vergelijk realty's

Te koop horeca

horeca horeca horeca horeca horeca horeca horeca horeca horeca horeca horeca horeca horeca horeca horeca horeca horeca horeca horeca horeca horeca horeca horeca horeca horeca horeca horeca horeca
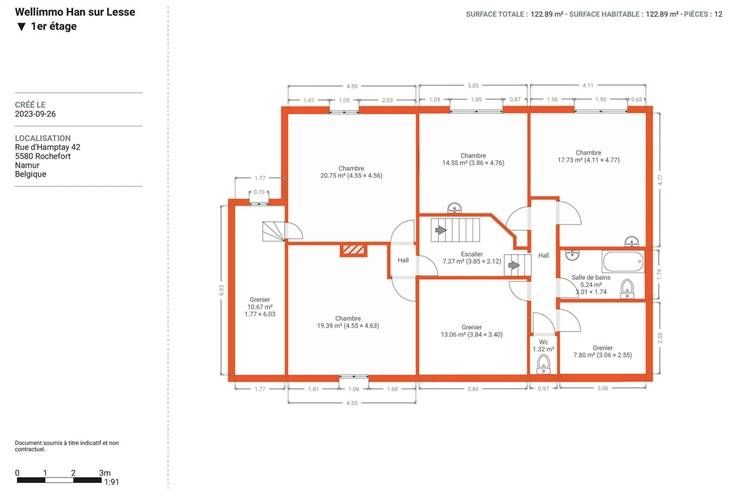
VERKOCHT ! ! Een heel veelbelovende ligging voor dit mooie gebouw, opgetrokken uit stenen vol charme en authenticiteit! Op een steenworp afstand van het heel waarschijnlijk toekomstige vertrek naar de Grotten, biedt dit te renoveren gebouw een enorm uitbatingspotentieel: met ongeveer 270 m² dat kan worden ingericht, een toegang langs twee straten (Rue d'Hamptay en rue des Marronniers), kunnen er veel projecten worden ontwikkeld. Het verleden belooft ook veel goeds, want het was ooit een restaurant: la "Taverne Ardennaise". Nog een belangrijke troef: het perceel grond (in een woonwijk) gelegen tegenover het gebouw, waarop momenteel een grote veranda is gebouwd, is ook te koop (8 are 10 centiare en ongeveer 60 meter aan de straat)... .
Type vastgoed Commercieel
Prijs Op aanvraag
Bewoonbare opp. 270
Gemeubileerd YES