Te koop Huis

Beschrijving van   

Vergelijk realty's

Te koop Huis

Huis Huis Huis Huis Huis Huis Huis Huis Huis Huis Huis Huis Huis Huis Huis Huis Huis Huis Huis Huis Huis Huis Huis Huis
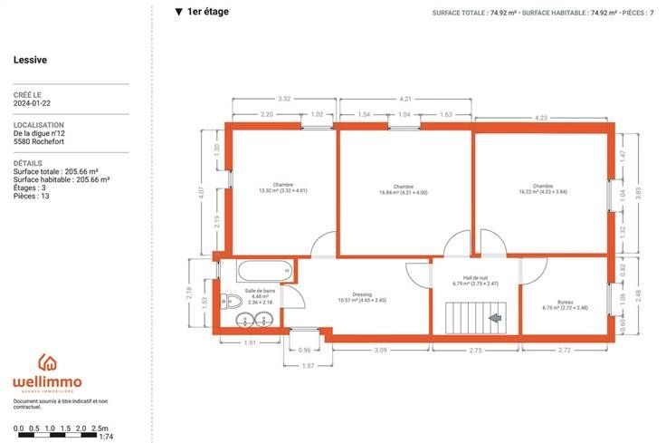
VERKOCHT ! ! Wellimmo stelt u dit sympathieke huis met 3 slk voor. Het staat in Lessive, een charmant dorp in de gemeente Rochefort. Met zijn mooie woonkamers met veel natuurlijk licht, een volledig nieuwe uitgeruste keuken, een grote wasruimte, 3 kamers, een bureau, een dressing, een badkamer en een nog inrichtbare zolder is het perfect als hoofdverblijfplaats of als investering! Het huis heeft geen tuin, maar staat in een mooie en rustige omgeving, op twee stappen van de “Ravel”, de grote fietsroute die veel steden in Wallonië met elkaar verbindt. De plupunten? Het werd onlangs voor een groot stuk gerenoveerd (nieuwe verwarmingsketel, elektriciteit conform, zonnepanelen, enz.), het KI laat toe verminderde registratiekosten te betalen en de E411 is heel dichtbij! Dit moet u zeker bezoeken!
Type vastgoed Huis
Prijs Op aanvraag
Bewoonbare opp. 133
Aantal slaapkamers 3
Aantal badkamers 1