Te koop Appartementsgebouw

Beschrijving van   

Vergelijk realty's

Te koop Appartementsgebouw

Appartementsgebouw Appartementsgebouw Appartementsgebouw
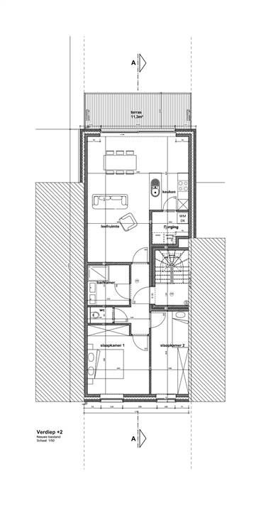
Nieuwbouw appartement met 2 slaapkamers op de tweede verdieping van een klein gebouw zonder lift. Gelegen in een aangename en rustige straat nabij het centrum van Stabroek. We komen het appartement binnen via de inkomhal. Doorgang naar de leefruimte met open keuken. Via schuifraam toegang tot ruim terras. Verder is er ook nog een handige berging. Vooraan vinden we 2 slaapkamers, een badkamer en een aparte wc. EEr kan een dubbele autostaanplaats bij aangekocht worden. BEN-appartementen (E-peil 20) door uitvoerige isolatie, zonnepanelen en warmtepomp met vloerverwarming.
Type vastgoed Appartement
Prijs 259.000
Bewoonbare opp. 76
Aantal slaapkamers 2
Aantal badkamers 1