Te huur Handelszaak

Beschrijving van   

Vergelijk realty's

Te huur Handelszaak

Handelszaak Handelszaak Handelszaak Handelszaak Handelszaak Handelszaak Handelszaak Handelszaak
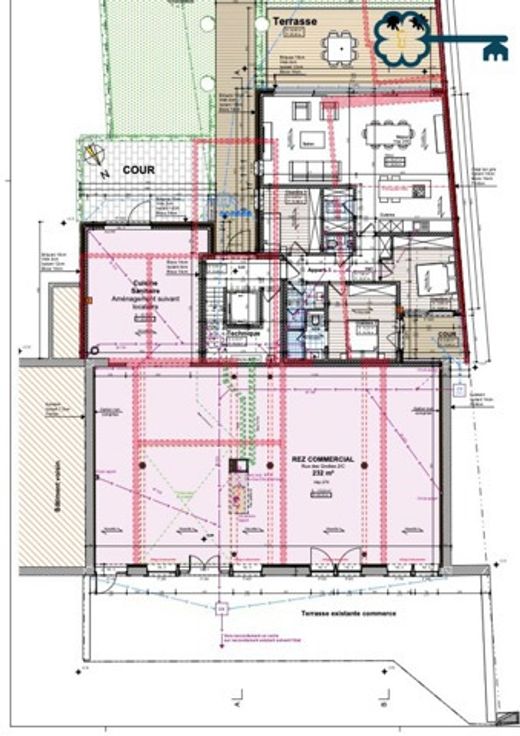
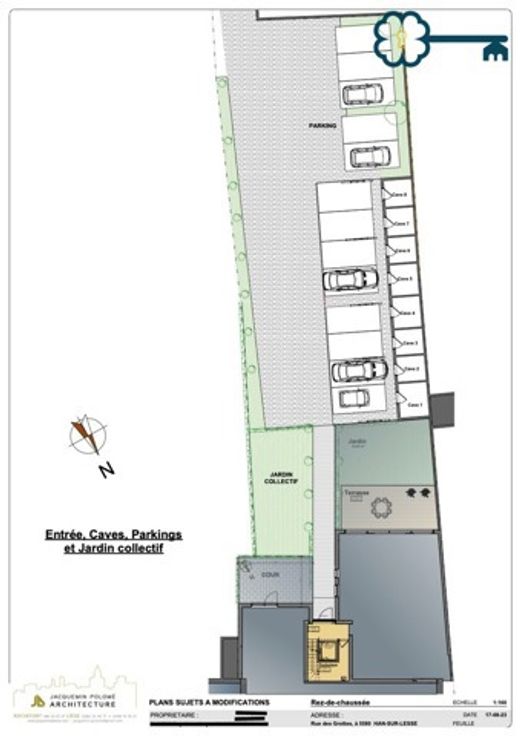
La clé des maisons vous propose, à la location, ce rez commercial situé au coeur du village touristique de Han/Lesse. Il représente une opportunité unique pour les commerçants. Avec une superficie généreuse de 232 m² complétée par une magnifique terrasse à l'avant de 80 m² et à l'arrière de 30 m². Construit par la renommée société BALFROID-MAGNEE de WELLIN, dont la réputation d'excellence et de savoir-faire n'est plus à démontrer. Ce local est loué CASCO, permettant une personnalisation complète selon vos besoins. Livré avec la cave n°8 et son car-port muni de 15 panneaux photovoltaïques. L'immeuble comprend également 5 appartements et 2 duplex, offrant une dynamique résidentielle à l'environnement commercial. Des emplacements de parking pour le commerce (max 5) sont disponibles en option (50€/parking/mois), ajoutant ainsi une valeur supplémentaire. Pour votre facilité, les fournisseurs ont également accès via l'arrière du bâtiment (rue d'Hamptay). Possibilité de scinder le rez en 2 entités distinctes. Loyer: 2 500€/mois + 200 € de provision pour le précompte immobilier et les éventuelles charges communes encore à déterminer. 2 mois de garantie locative bloqué sur un compte Korfine. Profitez de cette occasion exceptionnelle pour établir ou étendre votre présence dans un des sites les plus prisés de la région. Info et renseignements : Anne 0496/12 64 40. Documents téléchargeables sur: https://www.lacledesmaisons.be/fr/bien/a-louer/commerce/5580-rochefort-hansur-lesse/6325210
Type vastgoed Commercieel
Prijs 2.500
Bewoonbare opp. 232