Te koop Huis

Beschrijving van   

Vergelijk realty's

Te koop Huis

Huis Huis Huis Huis Huis Huis Huis Huis Huis
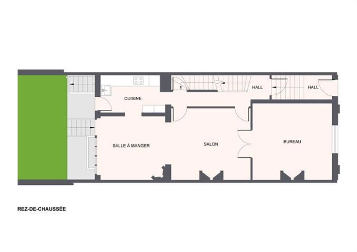
Visites suspendues - Dans l'attente de la signature d'un compromis de vente - A proximité du Rond-Point Montgomery, maison unifamiliale actuellement divisée en 4 logements. La maison présente un très beau potentiel (4 chambres-à-coucher + 3 salles de bains), et nécessite des travaux de rénovations importants. Sur base de plans dessinés par un architecte, il est possible de prévoir au sous-sol des vastes caves et un espace buanderie. Au rez-de-chaussée: un living de 37 m², une salle-à-manger de 13 m² et une cuisine. Au premier étage: 2 chambres-à-coucher (17 et 15 m²), un dressing/bureau (17 m²), une salle de bains, une salle de douche, et une toilette séparée. Au deuxième étage: 2 chambres (17 et 16 m²), une salle de douche, et une toilette séparée. Combles. Beau jardin de ville (+/- 50 m²) orienté sud-ouest. Localisation géographique optimale.
Type vastgoed Huis
Prijs Op aanvraag
Bewoonbare opp. 265
Aantal slaapkamers 4