Te koop Appartement

Beschrijving van   

Vergelijk realty's

Te koop Appartement

Appartement Appartement
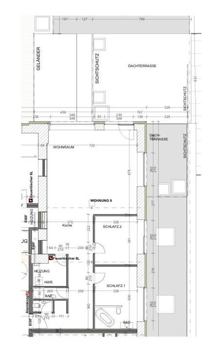
Ontdek ons uitzonderlijke nieuwe woonproject in het hart van de lage stad van Eupen, in een rustige omgeving nabij de bossen. Deze ontwikkeling omvat 13 hoogwaardige appartementen die modern comfort combineren met investeringsmogelijkheden. Kenmerken van het project: Gevarieerde appartementen: Kies uit appartementen van 62 tot 196 m², geschikt voor zowel verhuurinvesteringen als een hoofdverblijf. Optimale comfort: Elk appartement is ontworpen om een comfortabele en functionele woonruimte te bieden, met hoogwaardige afwerkingen. Personalisatie: De interieurindelingen kunnen worden aangepast aan uw smaak en voorkeuren, zodat u een ruimte kunt creëren die bij u past. Tuin en/of terras: Alle appartementen beschikken over een tuin en/of terras, inbegrepen in de prijs, wat extra buitenruimte biedt. Financiële voordelen: Voordelige verkoopregeling: Profiteer van een verlaagd registratierecht van 12,5 % in plaats van 21 %, wat een aanzienlijke besparing oplevert. Dit project biedt een unieke kans om te investeren in een rustige omgeving, terwijl u toch dicht bij de stedelijke voorzieningen blijft. Mis deze kans niet om eigenaar te worden van een uitzonderlijk goed in Eupen. Voor meer informatie of om een bezoek te regelen, neem gerust contact met ons op.
Type vastgoed Appartement
Prijs 413.500
Bewoonbare opp. 121
Aantal slaapkamers 2