Te koop Huis

Beschrijving van   

Vergelijk realty's

Te koop Huis

Huis Huis Huis Huis
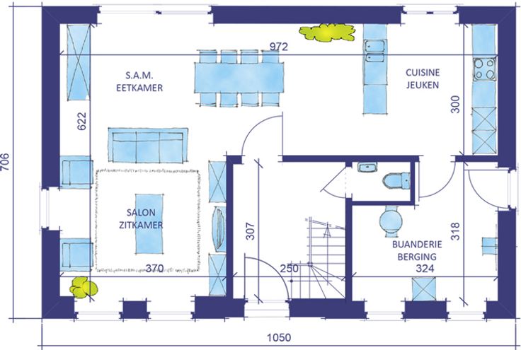
Nous vous proposons notre projet de villa Qzen, une habitation quasi zéro énergie (QZEN) construite de manière 100% traditionnelle. Cette villa bénéficie d'une performance énergétique exceptionnelle de classe PEB A+. Elle est équipée de triple vitrage, de 14 panneaux photovoltaïques et d’une ventilation double flux. Le chauffage au sol est assuré par une pompe à chaleur, garantissant confort et efficacité énergétique. L’isolation est soignée, avec 14 cm pour les murs, 12 cm pour le sol et 44 cm pour la toiture. La villa est implantée sur un grand terrain de 5550 m² dont 12 ares situé en zone d'habitat pour la construction d'une habitation traditionnelle et le surplus (43 ares) se trouve en zone agricole, situation idéale pour chevaux ou cultures. Au rez-de-chaussée, vous découvrirez un spacieux hall d’entrée, un salon-salle à manger lumineux, une cuisine (non équipée) et une grande buanderie. À l’étage, la maison propose 4 chambres, une salle de bains (avec meuble lavabo, sanitaires et robinetterie inclus) et un WC séparé. Les plans peuvent être personnalisés selon vos besoins, avec un large choix de matériaux inclus sans supplément. La maison est livrée clé sur porte, construite en respectant un cahier des charges complet et une approche traditionnelle. Nous vous invitons à découvrir notre magnifique maison témoin de Chaumont-Gistoux, disponible pour des visites sur rendez-vous en semaine et le week-end. Contactez-nous au 02/556 47 56. Adresse: Chemin du Bonly (face du n°73)
Type vastgoed Huis
Prijs 362.548
Bewoonbare opp. 147
Aantal slaapkamers 4
Aantal badkamers 1