Te koop Woning in aanbouw in het Centrum van Beveren

Beschrijving van   

Vergelijk realty's

Te koop Woning in aanbouw in het Centrum van Beveren

Woning in aanbouw in het Centrum van Beveren Woning in aanbouw in het Centrum van Beveren Woning in aanbouw in het Centrum van Beveren Woning in aanbouw in het Centrum van Beveren Woning in aanbouw in het Centrum van Beveren Woning in aanbouw in het Centrum van Beveren Woning in aanbouw in het Centrum van Beveren Woning in aanbouw in het Centrum van Beveren Woning in aanbouw in het Centrum van Beveren
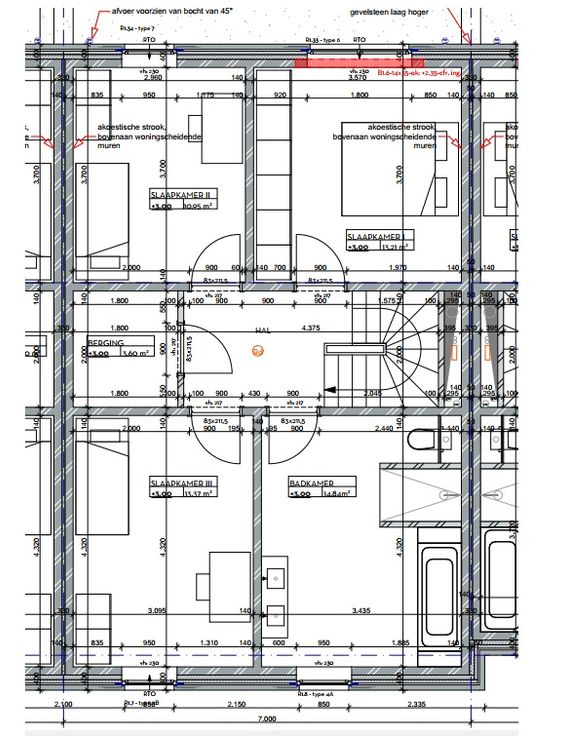
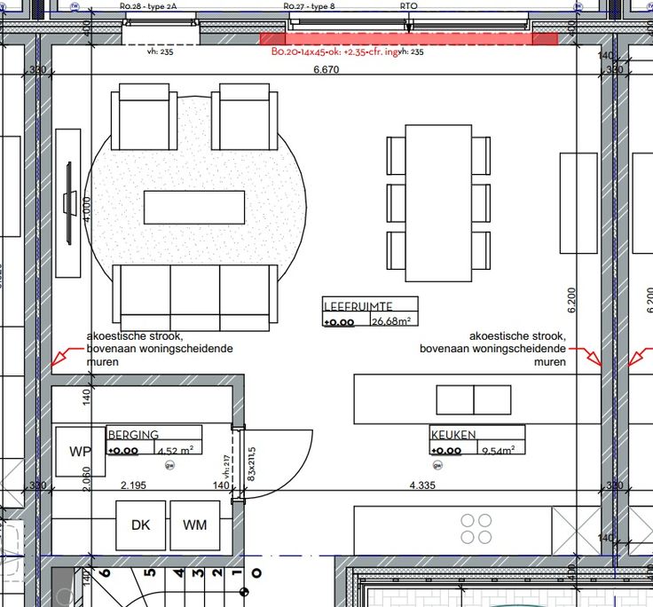
Deze nieuwbouwwoning in ruwbouwfase situeert zich in het centrum van Beveren. Deze woning wordt kwalitatief afgewerkt en is voorzien van alle nieuwste technologieën zoals akoestische isolatie, hoogrendementsglas, zonnepanelen en vloerverwarming (a.d.h.v een geothermische warmtepomp). Deze nieuwbouwwoning is bijna-energieneutraal en voldoet aan de huidige normen qua energiezuinigheid.  U geniet van alle wooncomfort, onder meer door een compleet uitgeruste keuken, een ruime badkamer, een groot terras dat mooi aansluit op de gezellige woonkamer én een gezellige privé-tuin die zuid-west georiënteerd is. De woning beschikt eveneens over een ruime carport.  Indien u er snel bij bent kan u de woning nog naar eigen smaak aanpassen.  Bel of mail vrijblijvend voor een afspraak info@rosiersderidder.be of 052/41.41.94.  referentie: 4564 Renovatieplicht: onbekend
Type vastgoed Huis
Prijs 399.000
Bewoonbare opp. 151
Aantal slaapkamers 4
Aantal badkamers 1