Te koop Huis

Beschrijving van   

Vergelijk realty's

Te koop Huis

Huis Huis Huis Huis Huis Huis Huis Huis Huis Huis Huis Huis Huis Huis Huis Huis Huis Huis Huis Huis Huis Huis Huis Huis Huis Huis Huis
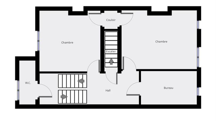
Visites suspendues - Dans l'attente de la signature d'un compromis de vente - Visite virtuelle disponible sous ce lien: https://my.matterport.com/show/?m=AeQZ9Utf4EC - A proximité des institutions européennes, des moyens de transport, et des commerces, dans une belle avenue arborée, jolie maison de caractère construite en 1898 avec jardin de 180 m² (orienté ouest). Cette maison rénovée dès 2012 (toiture, électricité, chaudière, plomberie,...) se compose au rez-de-chaussée (surélevé) d'un séjour de 36 m², d'une cuisine super-équipée ouverte sur la salle-à-manger. A l'entresol: Salle de douche, avec toilette et buanderie. Au premier étage: 2 grandes chambres-à-coucher (16 et 17 m²) dont une avec dressing, et un bureau de 7 m². Au deuxième étage: 2 chambres-à-coucher (16 et 14 m²) et un bureau. Entresol: Toilette. Au troisième étage: vaste grenier aménageable avec chaudière récente. En demi sous-sol (possibilité de profession libérale): chambre-à-coucher avec dressing (27 m²), et salle de bains complète (baignoire, douche et lavabo), toilette, atelier et cave. Grand jardin arboré et bien orienté. Maison de caractère dont les éléments d'époque ont été préserv&e
Type vastgoed Huis
Prijs Op aanvraag
Bewoonbare opp. 300
Aantal slaapkamers 5
Aantal badkamers 2