Te huur Instapklare burelen/showroom (± 1.400 m²) + opslagplaats ...
Benaderende OPPERVLAKTEN:
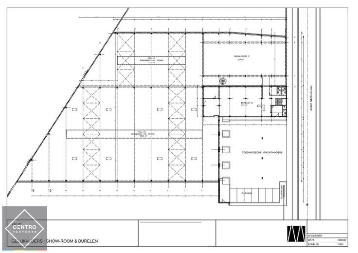
Magazijn: 2.717m²
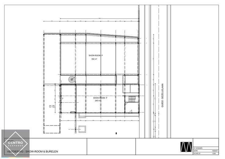
Kantoor/showroom: 1.422m²
Toegangszone vrachtwagens: 700m² met 10-tal parkeerplaatsen
INDELING:
Magazijn:
Open magazijnruimte met alle technieken voor het kantoor - toegang tot kantoor glv + trap naar eerste verdieping.
Kantoor/showroom:
Onthaal - burelen - landschapsburelen - vergaderruimtes - kleedruimtes - serverlokaal - technische ruimte - archief - sanitair (toiletten, douche) -...
AFWERKING:
Magazijn: gemetste constructie - houten spanten - polybeton - plat dak geïsoleerd met lichtkoepels en verlichting - 4 elektrische sectionaalpoorten (H: 4,50m- B: 4,00m) - vrije hoogte 7,00m (nok 8,75m) - verwarmingsinstallatie.
Kantoor: keramische vloeren - vast tapijt - tegelplafonds met airco en ventilatie - centrale verwarming - rookmelders - datavoorzieningen.
NUTSVOORZIENINGEN:
Elektriciteit (gescheiden kantoor/magazijn) 3 x 400V+N - gas - water -regenwater - ventilatie - internet/wifi - airco units - riolering.
LIGGING:
Op 3,5km van op-en afrit E403/A17. Op 100m van de Kop van De Vaart.
Vlakbij centrum Roeselare (in nabijheid van winkels, restaurants, bakkerij, beenhouwerij etc.)
* Bijzonderheden:
- Prijzen per maand excl. lasten en onroerende voorheffing.
- Afsluitbaar met een 4-delige schuifpoort vooraan.
- Mogelijkheid om alleen kantoor/showroom of alleen magazijn te huren.
- Onze referentie op www.centro.be: P0427 of contacteer ons via 050700102.
CENTRO | BEDRIJFSVASTGOED is reeds 23 jaar ...
Renovatieplicht: onbekend