Te koop Halfopen, energieneutrale nieuwbouwwoning ...

Beschrijving van   

Vergelijk realty's

Te koop Halfopen, energieneutrale nieuwbouwwoning op toplocatie!

Halfopen, energieneutrale nieuwbouwwoning op toplocatie! Halfopen, energieneutrale nieuwbouwwoning op toplocatie! Halfopen, energieneutrale nieuwbouwwoning op toplocatie! Halfopen, energieneutrale nieuwbouwwoning op toplocatie! Halfopen, energieneutrale nieuwbouwwoning op toplocatie!
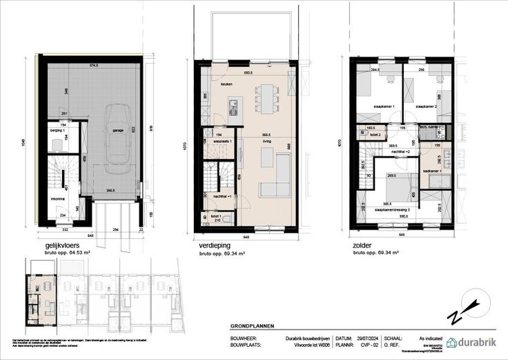
Deze halfopen bebouwing is uitstekend gelegen op een knooppunt van invalswegen en fietsautostrades naar onze hoofdstad. De woning heeft een modern uitzicht: een beige genuanceerde gevelsteen met donkergrijs buitenschrijnwerk en een plat dak vol zonnepanelen. Het perceel meet 187 m², de woonoppervlakte bedraagt 203 m². In de kelderverdieping heb je de inkomhal en de zeer grote garage met extra ruimte voor het plaatsen van meerdere fietsen. Er is ook een technische ruimte voorzien. Erboven op het gelijkvloers zien we de leefruimte met open keuken, de hal met trap en de wasplaats. De verdieping telt 3 slaapkamers, een badkamer inclusief douche en een meubel met dubbele lavabo. Bovendien is er ook een apart toilet. Alle ruimtes boven de kelderverdieping zijn voorzien van vloerverwarming. Deze wordt aangedreven door een ecologische warmtepomp en zonnepanelen waardoor we een negatief E-peil bereiken van maar liefst -10. Naast de woning is er een buitentrap die de tuin en de achterkant van de woning gemakkelijk bereikbaar maakt. Weet ook dat je de afwerking van de woning volledig zelf kan bepalen onder professionele begeleiding van onze interieurvormgevers. De woning wordt instapklaar opgeleverd. De zuidoost gerichte tuin wordt afgeboord met draadafsluiting en een tuinpoort. Bij Durabrik ben je zeker van een vaste prijs. Voor meer info, contacteer onze bouwadviseur via 09 280 60 60 of mail naar info@durabrik.be. * Beelden en oppervlaktes zijn indicatief. Renovatieplicht: nee
Type vastgoed Huis
Prijs 594.000
Bewoonbare opp. 202
Aantal slaapkamers 3
Aantal badkamers 1